注册 | 登录
今日更新:100
已为你搜索到以下结果 /没有搜到相关素材请加qq群704148082索取
三厘社-餐厅
2024-03-28 16:29:31
室内餐厅商业
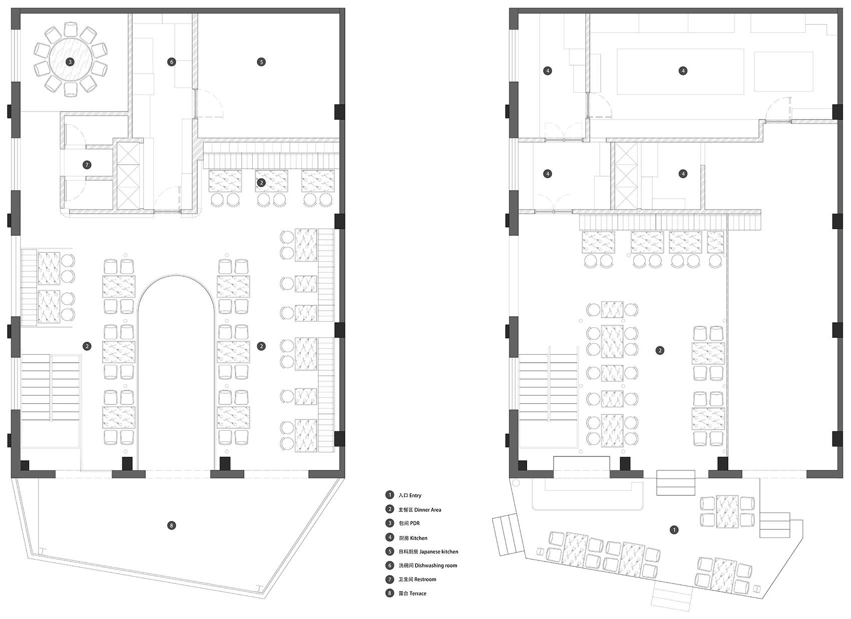
设计理念在于将独特的泰式餐饮文化与后工业文化完美融合,打造出一个既具有历史厚重感又充满现代活力的餐饮空间。

3.jpg

我们尊重并保留原工业厂房的斑驳质感,结合东洋复古风格的元素,营造出一个年轻、时髦且充满趣味的环境。同时,我们注重空间的开放性和包容性,让候客区域与公共街道形成互动,使空间在非营业时间也能成为社区的公共活动场所。

设计团队在太食獸的空间营造上,保留了工业厂房的原始构架与墙面质感,将其转化为具有观赏趣味的元素。室内空间以墨绿色为主基调,搭配纹理鲜明的餐桌椅和红色皮质沙发,营造出浓郁的后工业氛围。同时,通过通透的门窗引入自然光线,使室内植物与斑驳墙面形成光影交错的效果,为空间增添生动与活力。在室外候客区域,我们利用绿植打造出开放景观,既可作为公共露台供人停留,又与红砖厂房形成亲切的视觉联系。

4.jpg5.jpg6.jpg7.jpg8.jpg9.jpg1.jpg2.jpg10.jpg11.jpg12.jpg13.jpg14.jpg15.jpg16.jpg17.jpg18.jpg19.jpg20.jpg21.jpg

登录查看全部
三厘社-餐厅
素材ID号1359复制ID号
237
  • 上传时间: 2024-03-28 16:29:31
  • 文件大小: 8.37M
  • 素材标签: 室内餐厅商业
  • 高清原图下载
  • 收藏
  • 分享
  • 他上传的材料
    028-86628548
  • 关于我们 网站协议 关于我们 联系我们 加入我们 业务拓展
  • 常见问题 上传要求 下载问题 充值支付 提现收益 帮助中心
  • 免责声明 本网站内容由用户自由上传,如权利人发现存在误传其作品情形,请及时与本站客服联系
  • 友情链接
  • 关注我们

    了解更多