注册 | 登录
今日更新:100
已为你搜索到以下结果 /没有搜到相关素材请加qq群704148082索取
云麓食光·酒境融野
2024-03-28 16:43:06
室内餐厅酒吧
本设计项目的核心理念在于尊重自然、融入环境,同时兼顾功能与预算的双重约束。

我们充分利用场地高差,以错落的布局弱化建筑体量,实现与周围自然景观的和谐共生。在材质选择上,我们选用易于获取且施工周期短的钢结构,同时结合深色立面材质,使建筑在环境中既显眼又不过于突兀。通过巧妙的空间设计,我们引入了自然光线和景观视野,为游客营造出舒适、宜人的就餐与休闲环境。

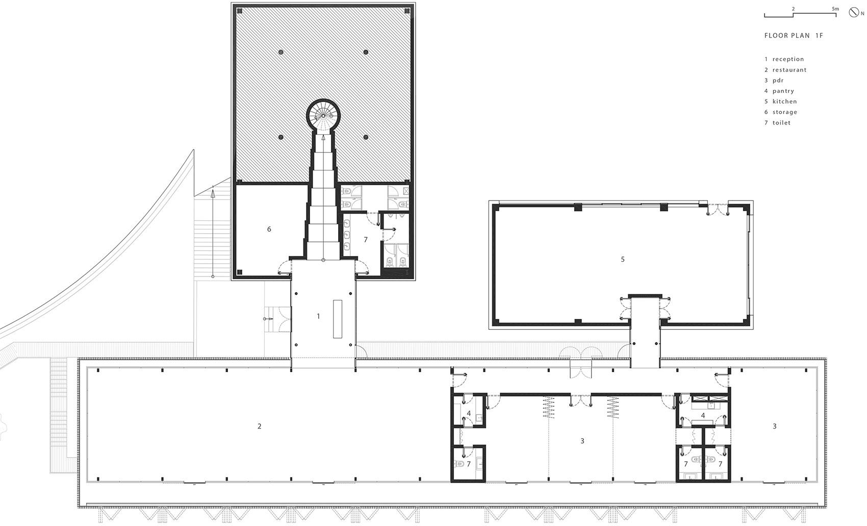
项目包括山间餐厅与酒吧两部分,分别位于不同标高的位置。餐厅沿山坡设置,采用玻璃与竖向百叶结合的外立面设计,引入自然光线并保留通透感。酒吧则位于入口标高处,通过旋转楼梯与入口厅相连,采用双层立面设计,可灵活调节开放程度,实现室内外空间的相互渗透。整个设计注重空间与环境的互动关系,通过灵活的布局和材质选择,实现了功能与美学的完美结合。

1.jpg2.jpg3.jpg4.jpg5.jpg6.jpg7.jpg8.jpg9.jpg10.jpg11.jpg12.jpg13.jpg14.jpg15.jpg16.jpg17.jpg18.jpg19.jpg20.jpg21.jpg22.jpg23.jpg24.jpg25.jpg

登录查看全部
上一篇:三厘社-餐厅 下一篇:苗厨·食忆
云麓食光·酒境融野
素材ID号1360复制ID号
249
  • 上传时间: 2024-03-28 16:43:06
  • 文件大小: 10.08M
  • 素材标签: 室内餐厅酒吧
  • 高清原图下载
  • 收藏
  • 分享
  • 他上传的材料
    028-86628548
  • 关于我们 网站协议 关于我们 联系我们 加入我们 业务拓展
  • 常见问题 上传要求 下载问题 充值支付 提现收益 帮助中心
  • 免责声明 本网站内容由用户自由上传,如权利人发现存在误传其作品情形,请及时与本站客服联系
  • 友情链接
  • 关注我们

    了解更多