Chapulin-墨西哥
2024-03-28 15:06:35
建筑餐饮空间室内
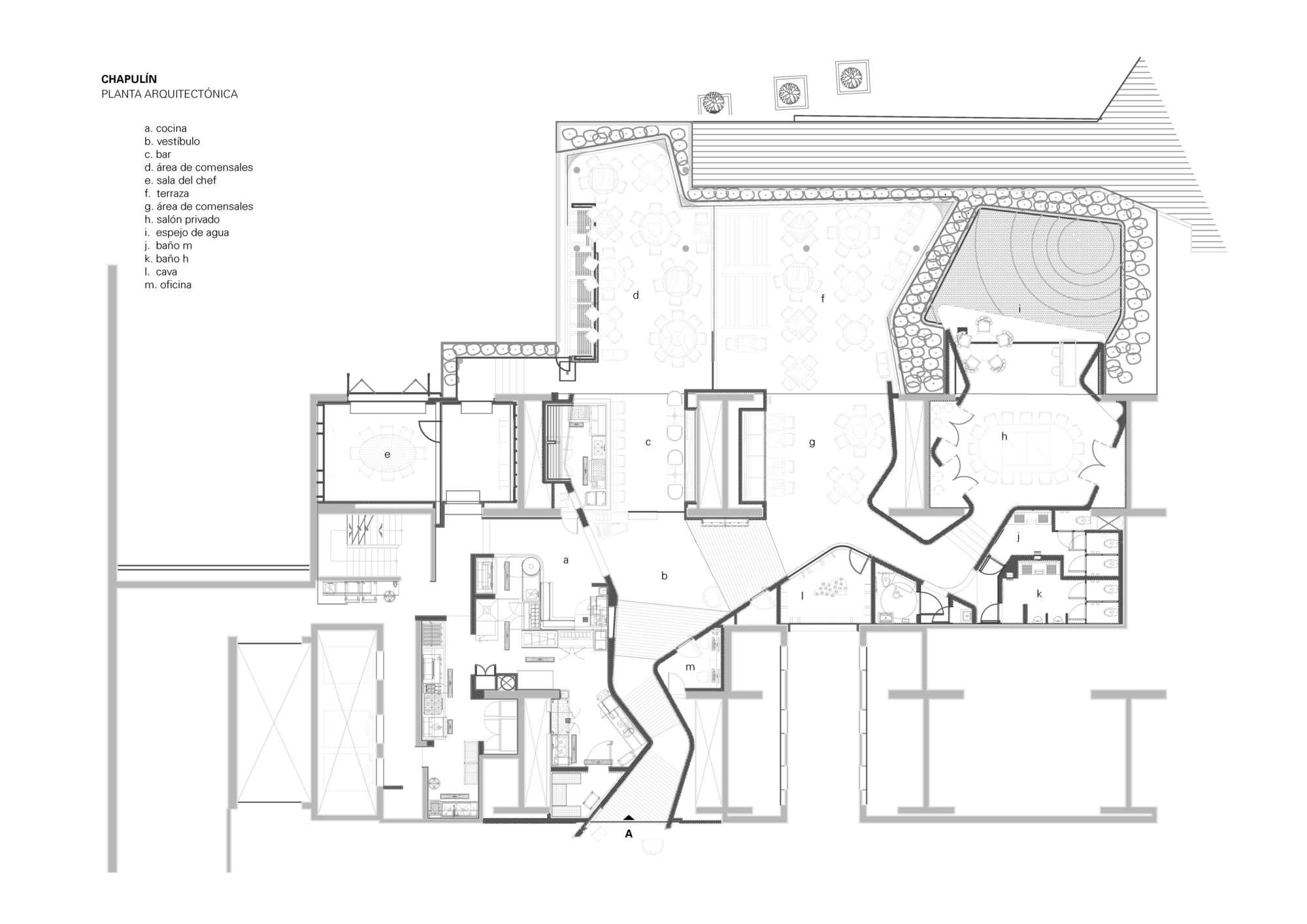
CHAPULIN概念是由央行建筑师和暴徒延伸来的,是融合了墨西哥历史上的特征元素。 它是一个空间灵感在古代墨西哥传统的本质
央行和暴民计划内部被符合各种材料完全渗透,强调每个不同地区的餐馆。 独特的走廊里,由一个固定的11000多个粘土瓦、手工制作的瓦哈卡“El Alacran”陶瓷车间,由墨西哥艺术家和雕塑家裴瑞兹阿丹把关,瓷砖设计战略以适应弯曲墙沿着走廊,从而生成之间的一个过渡空间、酒店的大堂和餐厅的大堂。


菜肴的香味和mezcal产生千变万化的数字组成的一块壁画。 这首曲子是由视觉艺术家伊格纳西奥·罗德里格斯巴赫和提出了一系列图像墨西哥城查普尔提匹克地区的代表餐厅的位置。 Chapulin(蝗虫)在复数)是墨西哥名本地物种的蚱蜢,墨西哥城查普尔提匹克意味着“希尔的蝗虫”和纳瓦特尔语,最著名的古代墨西哥母语仍然存活。

完成在木头和柳条编织、几何和篮筐元素的一些细节,装扮餐厅酒廊。 从大堂酒吧区很容易达到。外观特点是使用冷材料,如大理石、花岗岩、玻璃;湿草地相比木质墙板和吊顶,带回生活在墨西哥老殖民时代的优雅。



暴徒专门从事室内设计和家具设计,所有的家具都是由大师工匠中实现一个全面的和连贯的空间。空间是最宽敞的,餐厅一次划分在两个不同的空间:阳台和内心的休息室,墨西哥城查普尔提匹克森林的景象壮观,风景通过大量渗透窗口。



最后但不是最重要的,旁边的入口大厅的酒窖。 这个空间是特别设计的,房子各种各样的葡萄酒和mezcal品牌提供,餐厅为此用木制货架建成整个墙壁。 在房间的中心有一个特殊的家具,由一个显示内阁和下降从天花板上悬挂的灯具,展示最豪华的葡萄酒。 Chapulin是一个汇集了墨西哥的餐厅和精致的烹饪传统味道,体验意味着所有感官刺激。



登录查看全部