Bulka咖啡馆和面包店
2024-03-28 11:50:14
建筑餐饮空间室内
Bulka咖啡馆和面包店位于莫斯科高尔基公园中间的广泛的沿着莫斯科河花园。 因此,绿色的主题公园投射到室内设计,通过各种细节让一些阳光明媚的夏天投射到莫斯科短阴天和漫长的冬夜。
克罗斯比工作室设计的主要任务是创造最烘焙餐厅最少的传统的面包店,古董家具,果酱罐等,一个年轻的现代夫妇和建筑师提出了避暑别墅在乡下的想法。



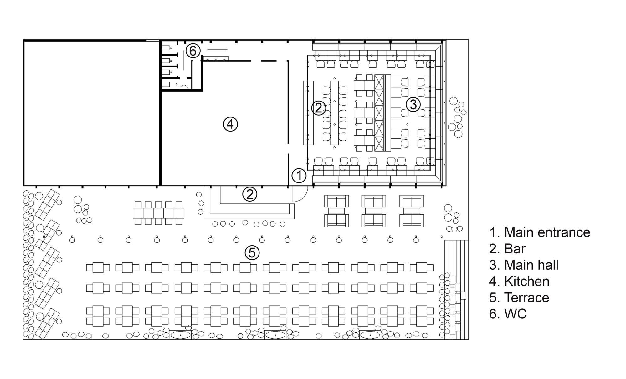
开放空间分为区域工业、货架、装饰着盆栽和新鲜蔬菜等着被厨师做饭。





常规水管道和设备就像一个会使用户外水出口,在形成三个水龙头沿着单一宽的沉锡做通风通道,实木地板是沾染了灰色阴影石油。灯具蔓延在10×10米会场,周围的阅读灯和悬而未决的盆栽重复模式设定的架子。平面图是非常简单的和对称的,可以很容易地转化为满足各种正式或休闲的风格。板凳以及周边的场地在克罗斯比定制,工作室车间和彩绘玉的颜色就像酒吧凳和头顶的灯。餐具和餐具都存储在开放酒吧,站在viennoiserie盆栽后面的墙,只有一个没有窗户的画,在图形令人眼花缭乱的模式捕捉注意力。从外到其他三个展馆的玻璃墙,最后但并非最不重要的是,具体的位置作为一个公共公园建议作品是在晚上举行,只用了一个月来完成该项目。










登录查看全部