注册 | 登录
今日更新:100
已为你搜索到以下结果 /没有搜到相关素材请加qq群704148082索取
岁寒轩-餐饮空间
2024-03-26 16:21:25
建筑餐饮空间室内
通过运用唐代建筑元素,结合现代设计手法,打造一个既充满古典韵味又符合现代审美需求的餐厅空间。

设计师追求空间的和谐对比与比例平衡,通过材质的巧妙运用和细节的精致处理,营造出一种宁静、祥和、优越的就餐氛围,让顾客在品味美食的同时,也能感受到中国传统文化的魅力。


1.jpg2.jpg3.jpg4.jpg5.jpg

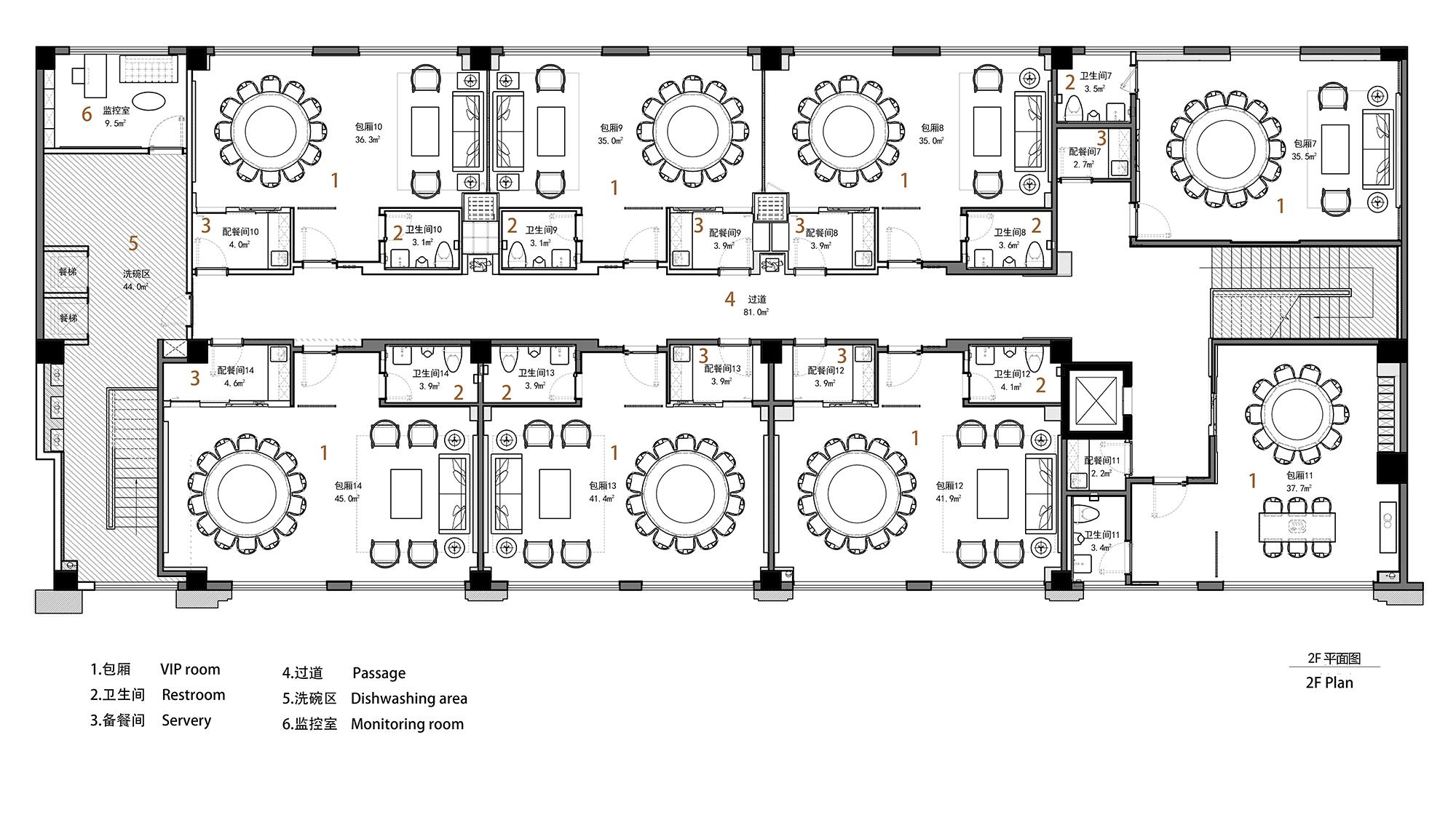
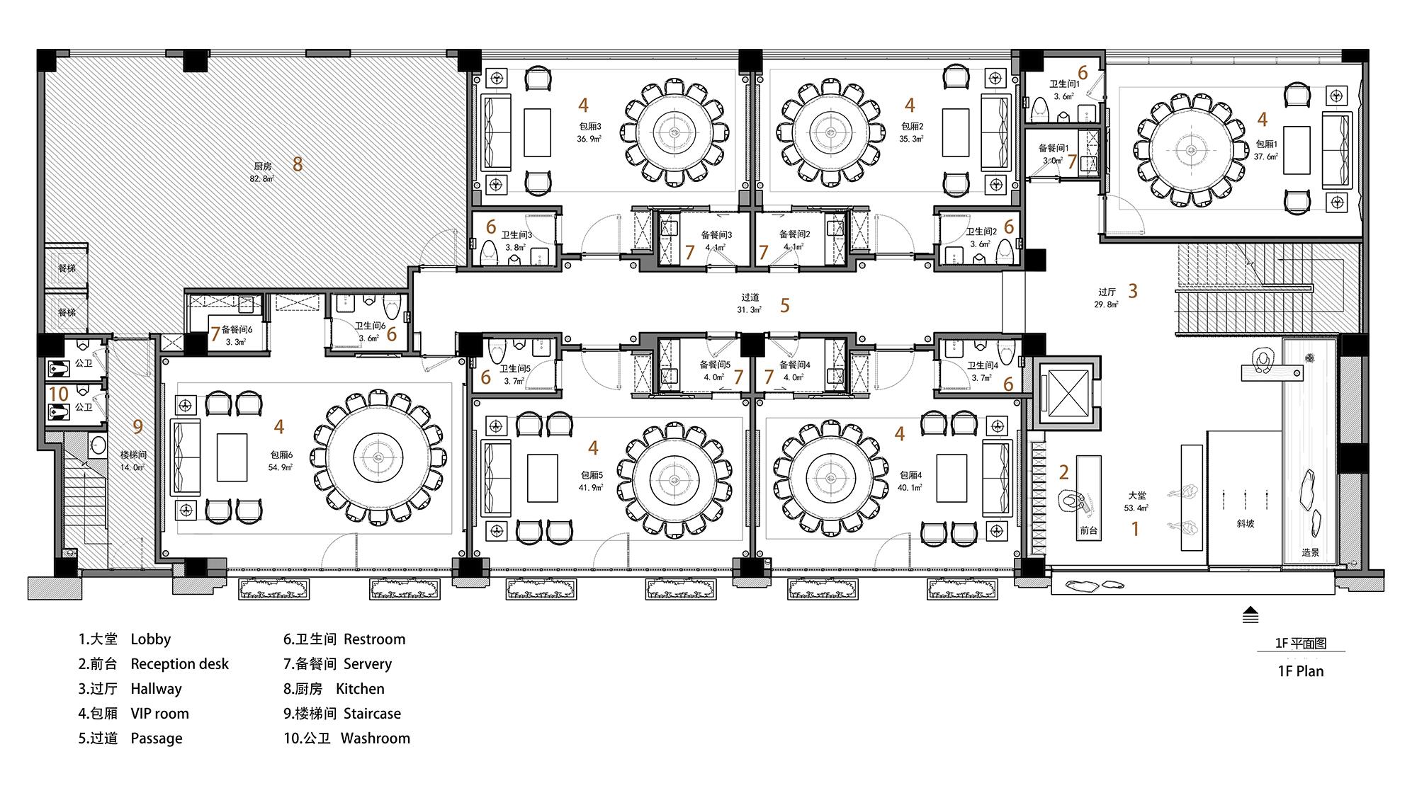
设计内容主要包括空间布局、材质运用、装饰元素等方面。空间布局上,利用原有空间的高度优势,通过增加木结构降低部分区域的高度,消除与客人的距离感,实现空间比例的和谐对比。

6.jpg7.jpg

材质运用上,采用唐代木结构、梁、柱等建筑元素,结合胡桃木、黄铜、石砖等材质,营造出一种古朴而典雅的空间氛围。

8.jpg9.jpg10.jpg11.jpg12.jpg13.jpg

装饰元素上,注重细节处理,如长而倾斜的走廊、与水面相连的胡桃木柱子、唐式写字台与书柜等,都体现了设计师对传统文化的深刻理解和创新运用。

14.jpg15.jpg16.jpg17.jpg18.jpg19.jpg20.jpg21.jpg22.jpg23.jpg24.jpg25.jpg26.jpg过道与楼梯3.jpg二层平面图.jpg一层平面图.jpg轴测图.jpg结构图.gif

登录查看全部
岁寒轩-餐饮空间
素材ID号1322复制ID号
240
  • 上传时间: 2024-03-26 16:21:25
  • 文件大小: 46.72M
  • 素材标签: 建筑餐饮空间室内
  • 高清原图下载
  • 收藏
  • 分享
  • 他上传的材料
    028-86628548
  • 关于我们 网站协议 关于我们 联系我们 加入我们 业务拓展
  • 常见问题 上传要求 下载问题 充值支付 提现收益 帮助中心
  • 免责声明 本网站内容由用户自由上传,如权利人发现存在误传其作品情形,请及时与本站客服联系
  • 友情链接
  • 关注我们

    了解更多