注册 | 登录
今日更新:100
已为你搜索到以下结果 /没有搜到相关素材请加qq群704148082索取
面遇时光-餐饮空间
2024-03-26 16:08:46
建筑餐饮空间室内
通过现代手法进行创新和转化,旨在打造出一个既能让顾客感受到浓厚西北风情,又能享受现代舒适就餐环境的餐厅。



1.jpg1a.jpg

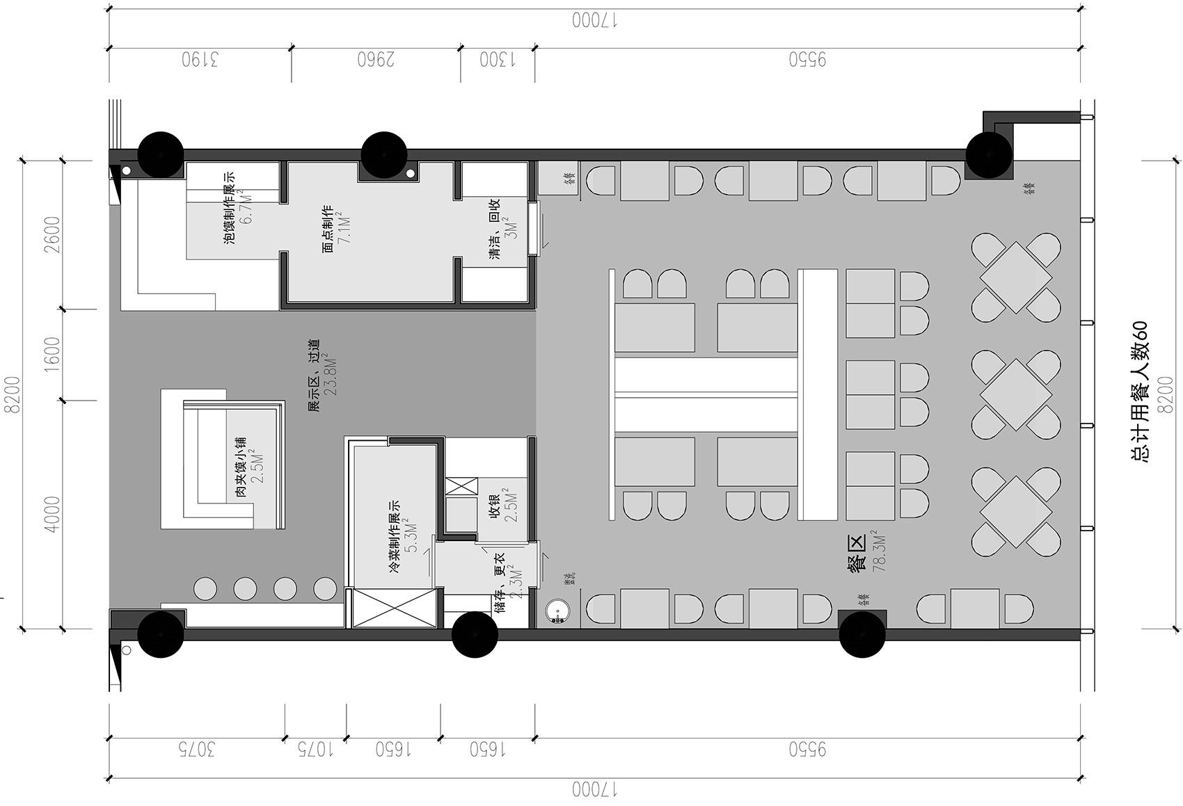
设计内容主要包括空间布局、材质运用、光影设计等方面。空间布局上,设计师以开放的形式呈现,通过划分不同功能区域,实现空间的合理利用和动线的流畅。

2.jpg3.jpg3a.jpg4.jpg4a.jpg4b.jpg5.jpg6.jpg

材质运用上,采用黑色主调,搭配金属、原木和岩石等材质,营造出神秘而富有层次感的空间氛围。

7.jpg8.jpg9.jpg

光影设计上,利用点光源装置和墙面体块、线条造型的投射,创造出丰富多变的光影效果,增强空间的立体感和层次感。同时,设计师还巧妙地将西北建筑的人字顶转化为吊顶设计,将传统元素与现代设计手法相结合,展现出独特的艺术美感。

10.jpg11.jpg12.jpg13.jpg14.jpg15.jpg16.jpg

登录查看全部
面遇时光-餐饮空间
素材ID号1321复制ID号
186
  • 上传时间: 2024-03-26 16:08:46
  • 文件大小: 6.97M
  • 素材标签: 建筑餐饮空间室内
  • 高清原图下载
  • 收藏
  • 分享
  • 他上传的材料
    028-86628548
  • 关于我们 网站协议 关于我们 联系我们 加入我们 业务拓展
  • 常见问题 上传要求 下载问题 充值支付 提现收益 帮助中心
  • 免责声明 本网站内容由用户自由上传,如权利人发现存在误传其作品情形,请及时与本站客服联系
  • 友情链接
  • 关注我们

    了解更多