清醒而温暖-巴西Play Arquitetura办公室
2023-03-17 15:46:29
工业办公室南美风格
使用的材料 - 凸起的混凝土地板和鹅卵石,木材,金属板,花岗岩和玻璃 - 清醒而温暖。浴室内衬彩色陶瓷,打破了灰色和赭石色调。

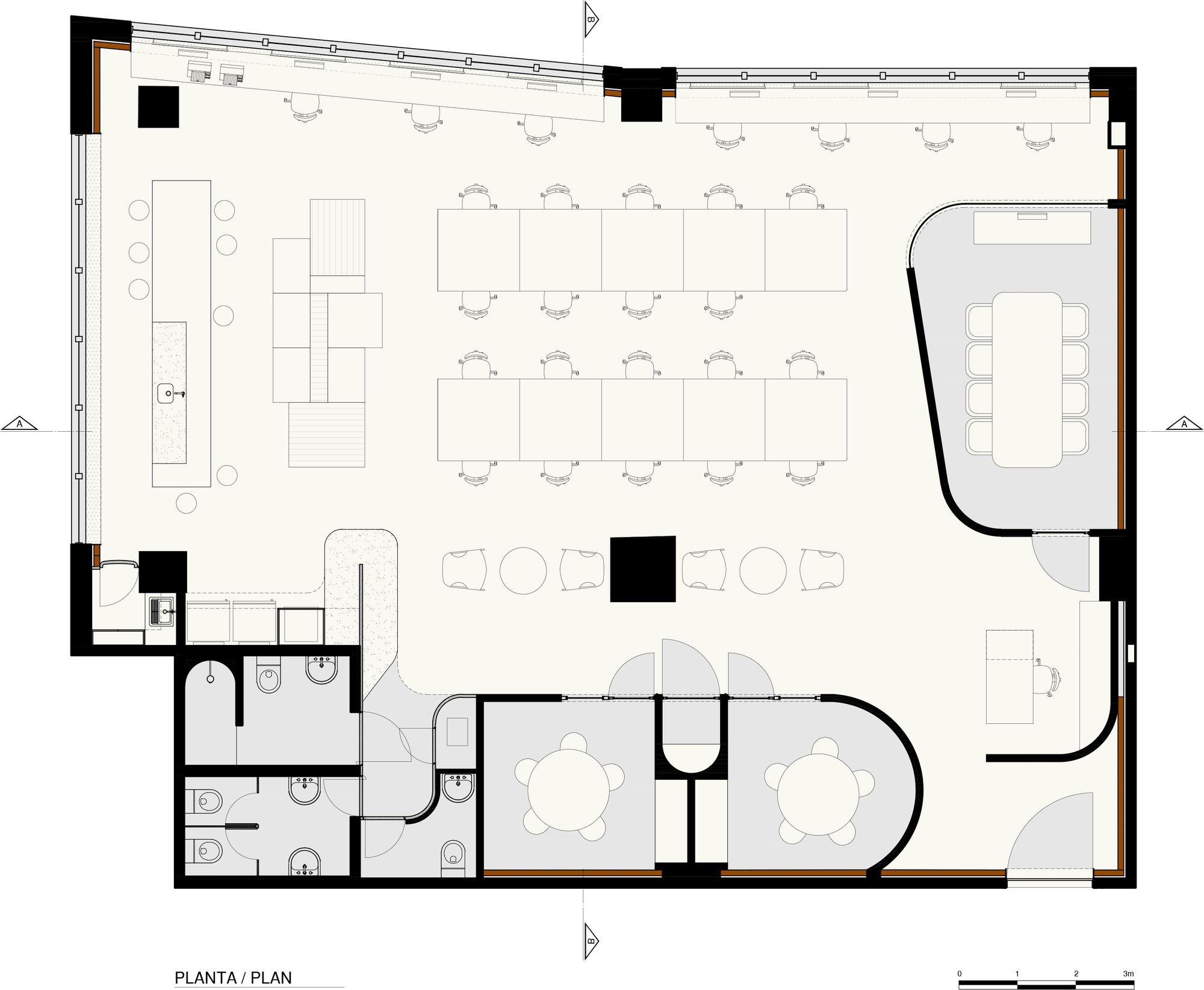
架构师提供的文本描述。 该项目旨在托管一家名为ChatPay的技术和社交媒体初创公司,保留并突出了该空间的两个主要原始特征:带有带肋板的混凝土结构和三个大窗户打开的美丽景色。为此,该计划要求的封闭空间 - 三个会议室,一个电话亭和浴室,位于大窗户对面。主会议室(A)接近景观并享受它,但是,没有分割或分割现有窗户。空调、照明和消防设施的组织和分布在空旷区域。

隔离区域设计有较低的天花板,带有声学天花板和隔音墙,构成了一个自主的体积,以其高度和轮廓的蜿蜒线条而脱颖而出。带肋板的这些“松散”内部容积允许空调管道和其他装置在其上方自由通过。两张大型集体工作台占据了空间的中心区域,供公司的永久员工使用,而沿着窗户则为访客或间歇性工作的员工创建了广泛的工作台。储藏室和厨房被视为非正式创意工作和思想交流的重要区域,并且靠近大侧窗,早晨的阳光自由照射。



大型多面沙发除了另外两个由保利斯塔诺扶手椅和边桌组成的小休息室外,还增加了社交空间。三间浴室,接待处和一个小洗衣区补充了空间。使用的材料 - 凸起的混凝土地板和鹅卵石,木材,金属板,花岗岩和玻璃 - 清醒而温暖。浴室内衬彩色陶瓷,打破了灰色和赭石色调。







登录查看全部