新奇感-纸板质感浓郁VDGA办公室
2023-03-17 13:12:35
现代创新纸板
无论是崎岖的地板还是质感浓郁的纸板墙,思想上都有新奇感。

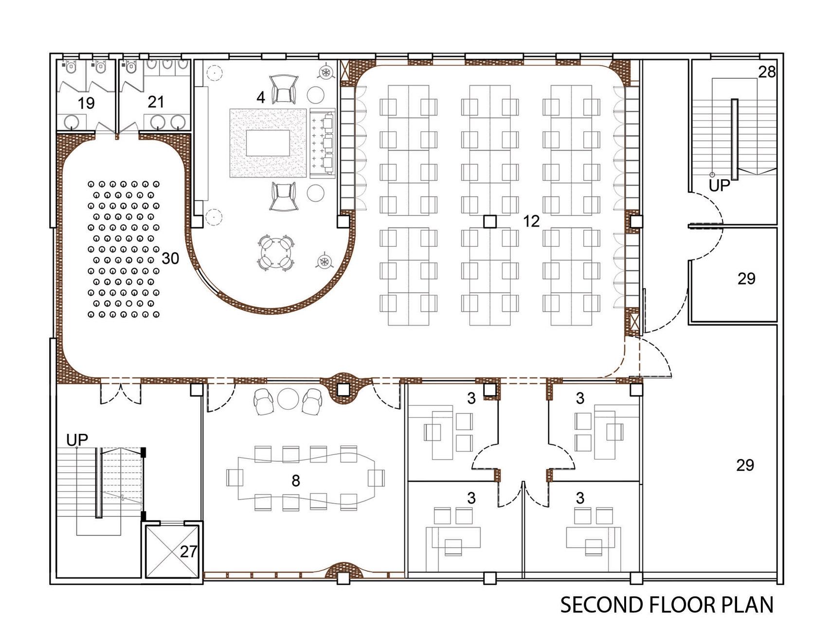
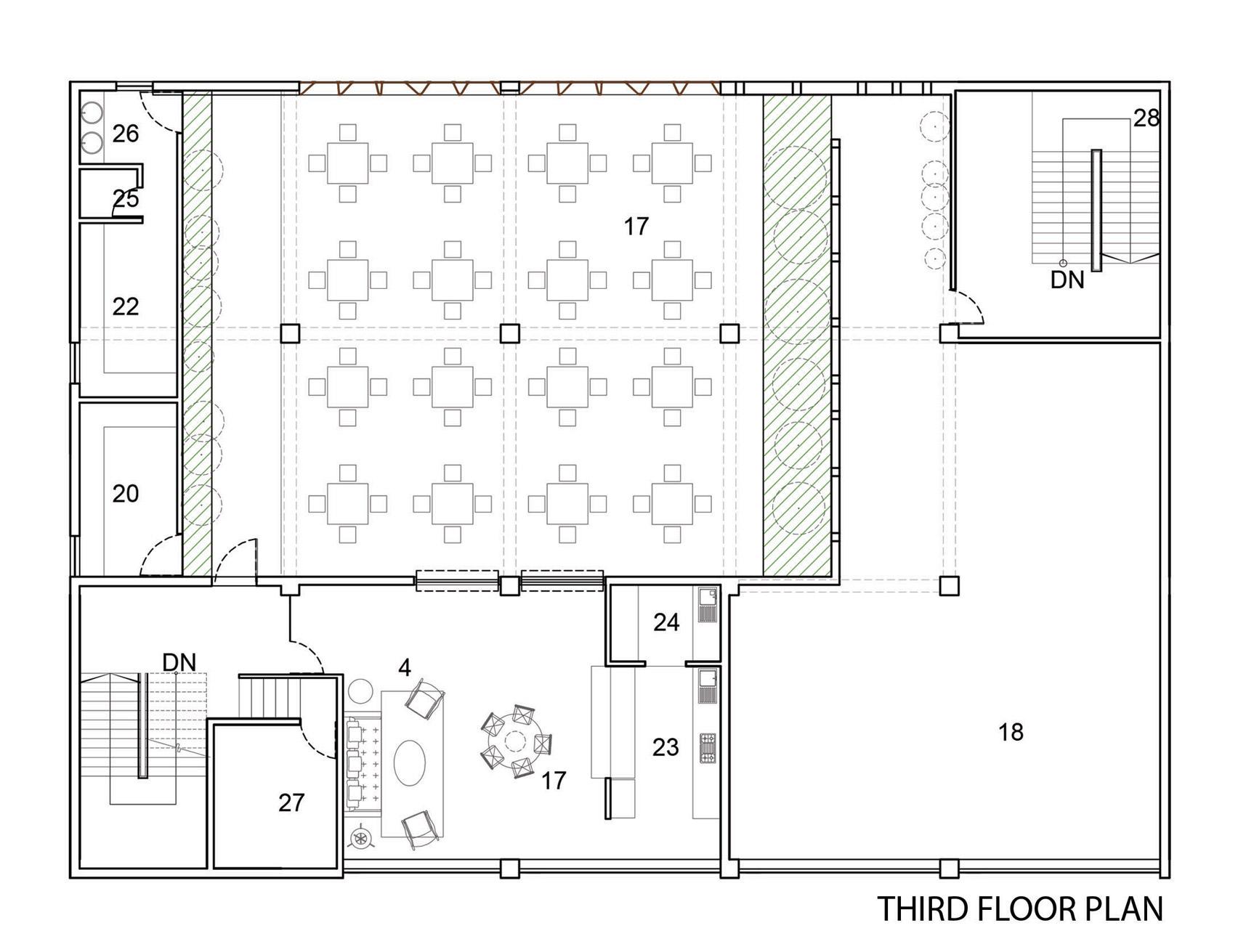
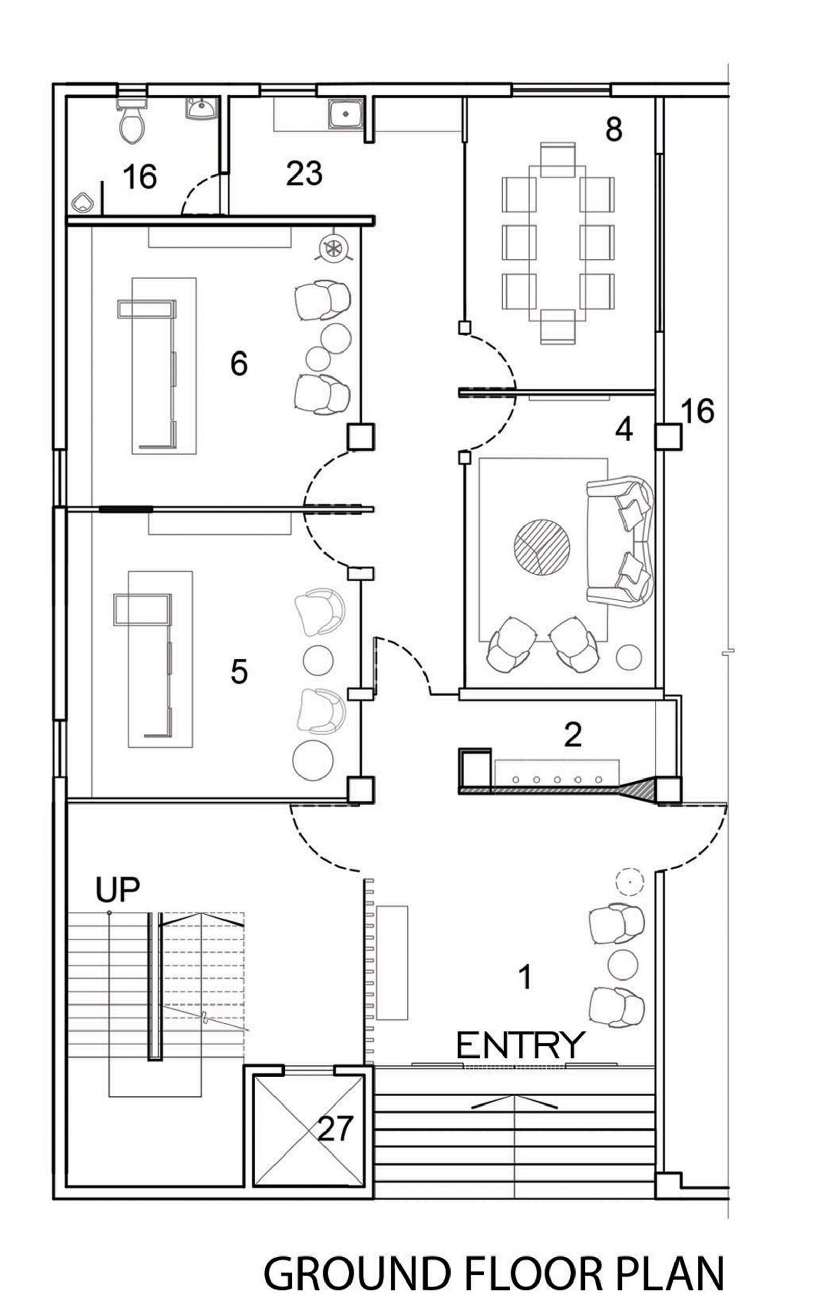
架构师提供的文本描述。 这个 13500 平方英尺的办公空间分为四层,采用独特的概念,即取消典型的实心隔断,代之以蜂窝状纸板,为空间增添质感和形式。蜂窝板以不同的轮廓分层铺设,以形成自由流动的曲线。




蜂窝板是一种100%可回收的纸箱产品,成本低。其六角形内孔结构和优质原材料提供了出色的压缩强度和刚度,可以承受冲击和高负载。由于板的厚度,它也提供了出色的吸音性。无论是接待背景、隔墙还是门,蜂窝板都能提供美观和实用的解决方案。

这个电子元件制造单位的工作空间希望他们的办公室具有独特的身份,以展示其不断创新的政策。他们想要一个与传统空间截然不同的空间,但又不影响功能。因此,引入蜂窝墙作为主要内部元素的想法诞生了。我们用自由流动的纸板墙包围了工作站、会议区和休息室,创造了有纹理的隔断。在玩弄强烈质感的同时,其余的内部元素保持微妙。


带有裸露电气和交流管道的原始天花板被认为是室内设计的一部分,因为我们不想进一步降低地面空间的高度。较低的三层由工作区组成,而露台楼层则被改造成封闭式用餐和半开放式食堂。然而,食堂的外观和感觉就像餐厅一样,裸露的砖墙,天然石材和微水泥混凝土地板以及典型的鸡蛋花树。

在空间中,人们可以清楚地看到不同的环境,这得益于材料的创新使用。典型的办公室感觉和正式负担在促进开箱即用方法的空间中缺失。




登录查看全部