落-工业Gonzalez Haase办公室
2023-03-17 10:57:17
工业旧建筑办公室
旧建筑的元素,如铸铁支架、钢梁和砖墙,被涂成光滑的纸莎草纸白色。
天花板上覆盖着防火泡沫,营造出意想不到的柔和横梁氛围,与家具的坚硬表面形成鲜明对比。

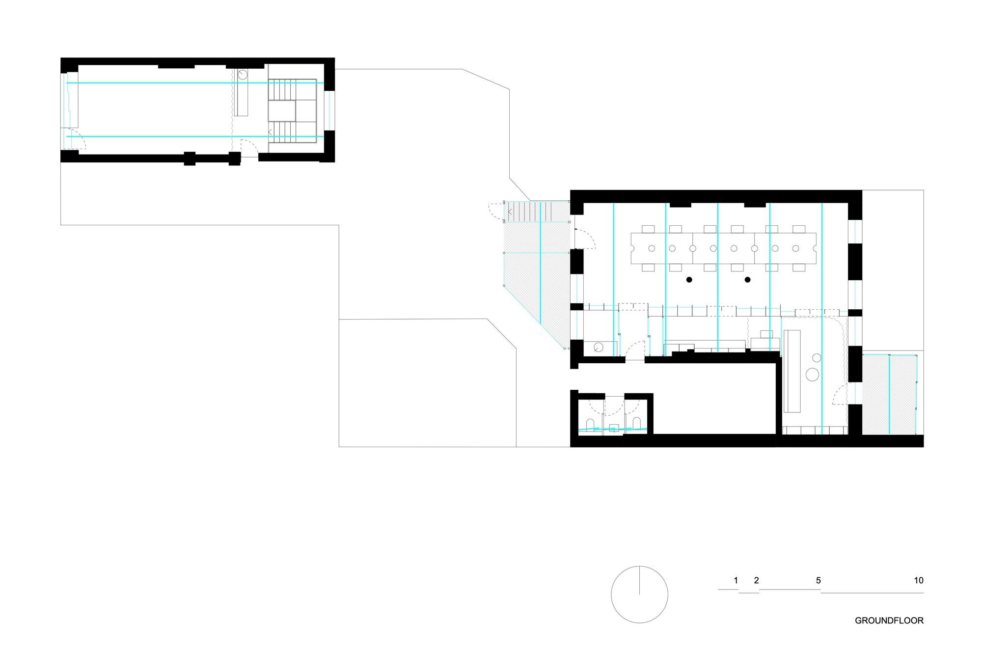
架构师提供的文本描述。 新的Bureau Borsche位于一栋典型的慕尼黑住宅楼内,一楼设有商业单元。2019年315月,冈萨雷斯·哈斯AAS承担了<>平方米办公空间的翻新、翻新和空间重新设计。建筑师在设计方面没有任何限制。

Borsche的主要愿望是,他能够与他的团队在一张公共桌子上一起工作,并有一个休息区可以撤退。为了实现这一目标,创建了三个具有不同功能的房间:前置建筑的陈列室,后楼的工作空间和地下室的档案室,连接展厅和工作空间。通过连贯的设计语言和轻质材料的应用,冈萨雷斯·哈斯(Gonzalez Haase)能够赋予空间新的结构,将家具变成建筑本身不可或缺的一部分。


金属条状窗帘可以根据需要打开和关闭,以在视觉上将休息室与工作区分开。9米长的桌子为团队提供了一个位于工作场所中心的协作空间。它由一个11.5毫米薄的铝蜂窝板组成,上面覆盖着灰色天然橡胶。整体式桌子和搁架单元的饰面定义了房间朴素的灰色和白色色谱,与团队的日常图形工作形成强烈对比。旧建筑的元素,如铸铁支架、钢梁和砖墙,被涂成光滑的纸莎草纸白色。





贯穿货架和整个房间的 LED 灯条营造出流动的空间感。水磨石风格的混凝土地板让人想起附近的地铁站 1970 年代的森德林格门。展厅同时用作展览空间、实验室和车间。优雅的街窗让路人对博尔舍局的工作世界印象深刻。




天花板上覆盖着防火泡沫,营造出意想不到的柔和横梁氛围,与家具的坚硬表面形成鲜明对比。在这里,水磨石地板继续作为墙板。小厨房和通往地下室档案室的开放式网格楼梯位于金属条状窗帘后面。办公家具系统 在设计过程中,Bureau Borsche的家具成为办公家具系统的原型:基于Gonzalez Haase的设计,建筑师与Stefan Diez和Wagner Living一起,正在将架子,桌子和隔断开发成参数化系统。通过中央连接元件,系统可以随时轻松组装和扩展,而无需使用工具。新的家具系统的特点是模块化和最大的灵活性。

登录查看全部