晴空万里-精湛的设计现代办公室
2023-03-16 16:28:22
泰国雕像办公室
建筑师:Abin Design Studio
面积 : 195900
项目年份 : 2020
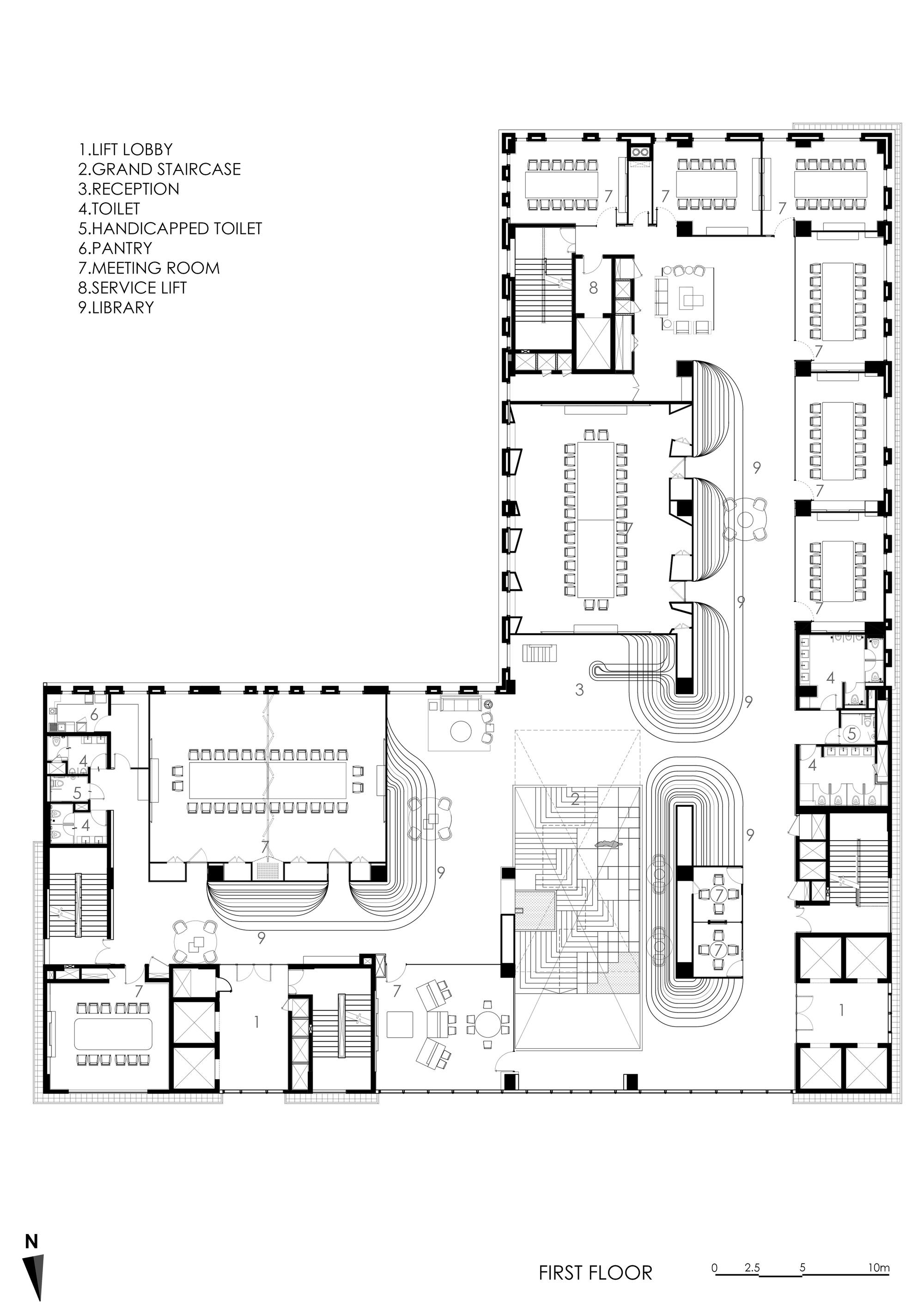
每个大厅都为来客引出了每层楼的设计语言。每层楼的接待前台也都有不同设计从而和其所在楼层的设计语言相统一。从背漆玻璃甚至到地毯边角碎布,颜色、艺术品和材料的使用都被运用起来去创造根据客户个性化定义的点睛室内装饰品。








这个集团办公空间的初始设计想法是想要将重点放在通过匠人工艺去实现空间叙事。幸运的是,建筑师有一群支持者,有一个想要创造一个精神道德上平静的氛围的意图,客户也支持对于突破“容器”和“所容之物”的界限和定义的设计想法。客户是一个热切的艺术赞助者和热情的艺术收藏家,因此设计上需要将公司办公室和当代艺术博物馆这两个设计思路融合在一起。建筑其中的空间是专门为了收藏展览那些手工艺品和那些展示人们生活热情和志向的艺术品而设计的,与此同时也要建立起一个能够有效协作运行的工作环境。



中央核经过一层又一层生长成了一个多面体的空间,自然光从这个通高的中庭倾洒下来,漫延进延续没有隔断的工作空间,这些工作空间按照公司办公室的分级竖向分隔开来。尽管结构上这些空间被分隔开来去实现工作运行效率,但是它们在视觉上是联系起来的,封闭的办公环境的界限被突破,每层之间敞开的交通让人们可以欣赏感叹交流艺术和生活,也让人们可以骄傲地感到自己在这个空间和这个公司里的归属感。


亲近感和宏伟仪式感的空间尝试,柔和内敛的材料组合以及夸张不寻常的视觉焦点元素被运用,打造了一个宏伟的入口中庭。这个设计是对这个国家里充满生机的河岸“石梯”的回忆和怀念,这些“石梯”在山间还会引领人们来到拥有集体智慧的寺庙等地方的塔尖,在那里人们的日常生活和神灵相遇。








大阶梯引出中庭,并展示出对于这些贵重艺术品收藏的所有权,走过大阶梯后来到图书馆藏书架,这里收有无价的文学瑰宝收藏。“展示所容之物”的设计挑战通过运用几个会议室之间的隔墙来解决,这些隔墙经过设计巧思同时成为了图书馆的藏书架。




登录查看全部