图书馆-Workspace onion
2023-03-15 13:35:34
开放图书馆公共空间
建筑师:onion
面积 : 1100m²
项目年份 : 2019
摄影师 :Ketsiree Wongwan,Srirath Somsawat
厂家 : FAMELINE,Hafele,In the glazz,Interface,VC Fabric
主创建筑师 :Siriyot Chaiamnuay
设计团队 :onion
City :曼谷
Country :泰国
Boonthavorn是泰国最著名的建筑材料零售商之一。Boonthavorn在曼谷创建于1977年,通过出售家庭装饰材料例如卫生洁具,浴室配件和瓷砖开始了家族企业。Boonthavorn的创意在于其在商店中对物品的布置,该布置方便了顾客,为他们在选择材料的过程中提供建议,这是将Boonthavorn和其他材料商区分开来的特点之一。在该行业的15年中,Boonthavorn展示了包括厨具,花岗岩,大理石板面,家具,电器以及其他用于家具装饰的材料。后来,Boonthavorn在全国范围内拓展了零售分支,建立了顾客-服务网络,提高了高技能技工的生产力并使用仓库机器人来提高送货服务的准确性。











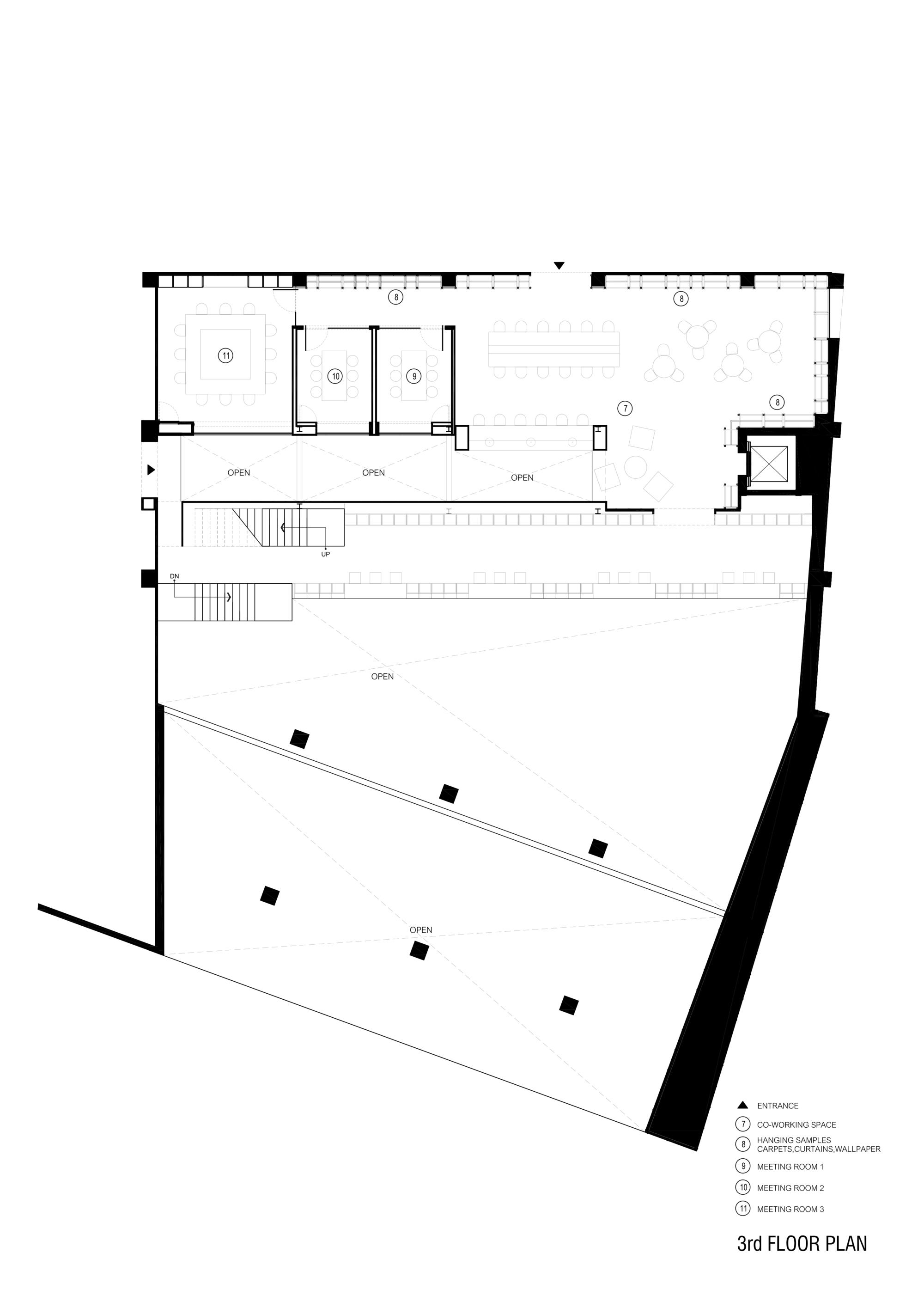
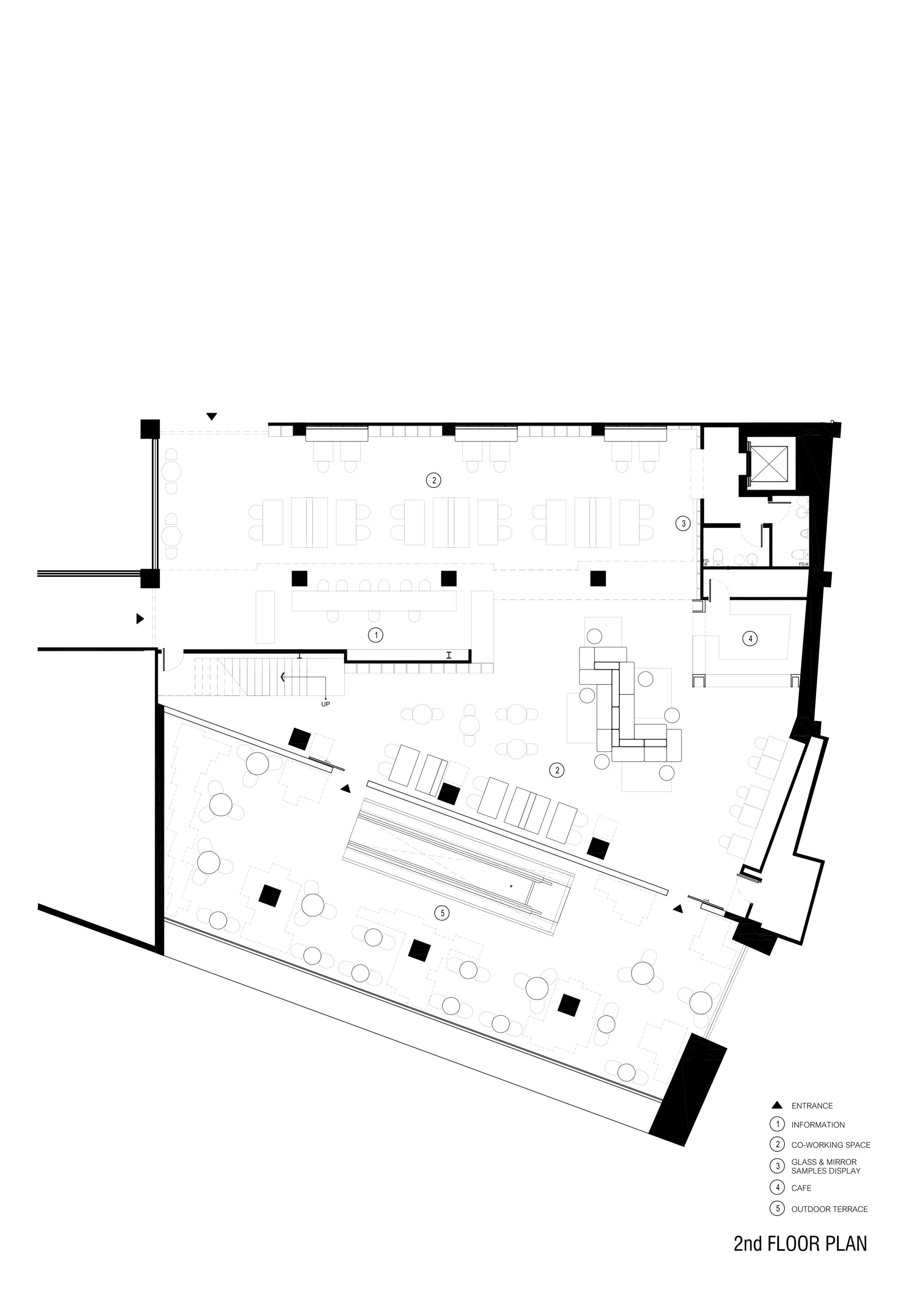
Onion通过4个按区域分类的材料系统来设计。联合办公区在主展示区,毗邻一个咖啡馆和拥有绿化以及座位的室外露台。我们将材料库和工作空间纵向叠加,每个楼层都有一个夹层,我们同时将这些空间向后推移,来提高室内外的视觉联系。建筑材料样品被存放于主要区域的模块化架子上,每个模块有0.6立方米,并且放入玻璃样品作为展示的一部分。设计师可以查看,触摸,以及阅读关于材料制造商的详细信息。








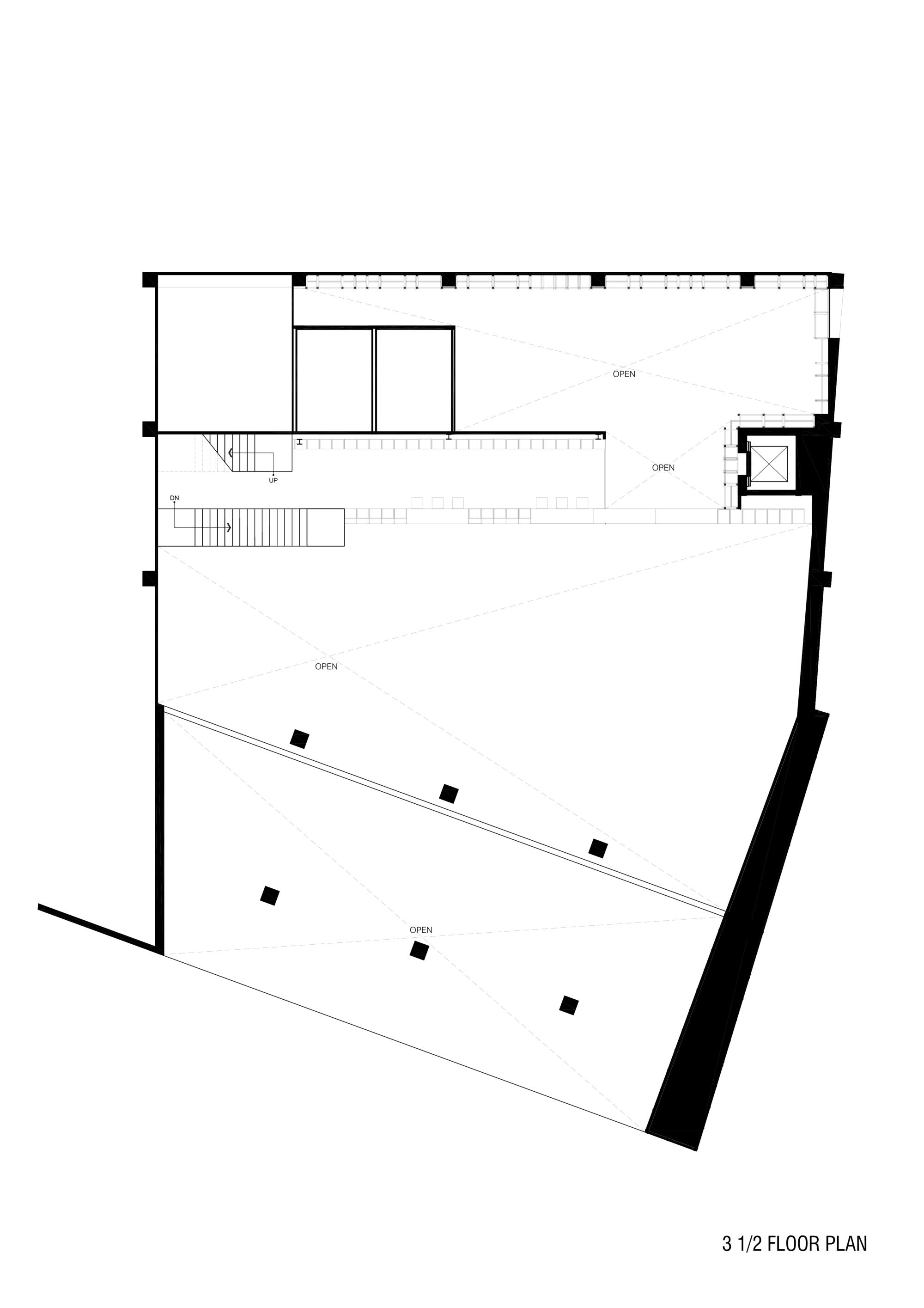
模块化的书架系统从主楼层(2层)开始一直延伸直到它到达了第三层空间(4.5th floor)的天花板。在第三层,协同工作空间变得更加私密。座位区被悬挂的材料样品,例如地毯,窗帘和墙纸所包围。它有两个6座的会议室和一个12座的会议室,这些会议室可以预定用于更正式的场合例如设计演讲。在第4层,在模块化书架的后面是压板样品展示房间,这些房间用于大到足以展示A5尺寸的压板样品,各种颜色大到足以覆盖整个墙壁,因此一眼望去就可以看到。



登录查看全部