现代-办公室MYO家居工作坊
2023-03-14 14:56:11
现代建筑办公空间
建筑师: SODA Studio
面积 : 40000ft²
项目年份 : 2019
摄影师 :Ed Reeve
厂家 : Tradition,+Halle,Atrivm,AutoDesk,Design Within Reach,Ferm Living,Floored Genius,HAY,HEM,Handvark,Holloway of Ludlow,Kvadrat,London Wall,Magis,Menu,Mitab,Modus,Muuto,New Tendancy,SAS International, +9
客户 :Landsec
工程师 :William J Marshall & Partners LLP
景观设计 :Exubia (Internal Planting)
顾问 :HIVE Consultants (MEP), MLM (Building Control)
施工方 :Collins Construction
木工 :Adams Joinery
金属 :Robert Stevens & Sons Ltd
City :伦敦
Country :英国

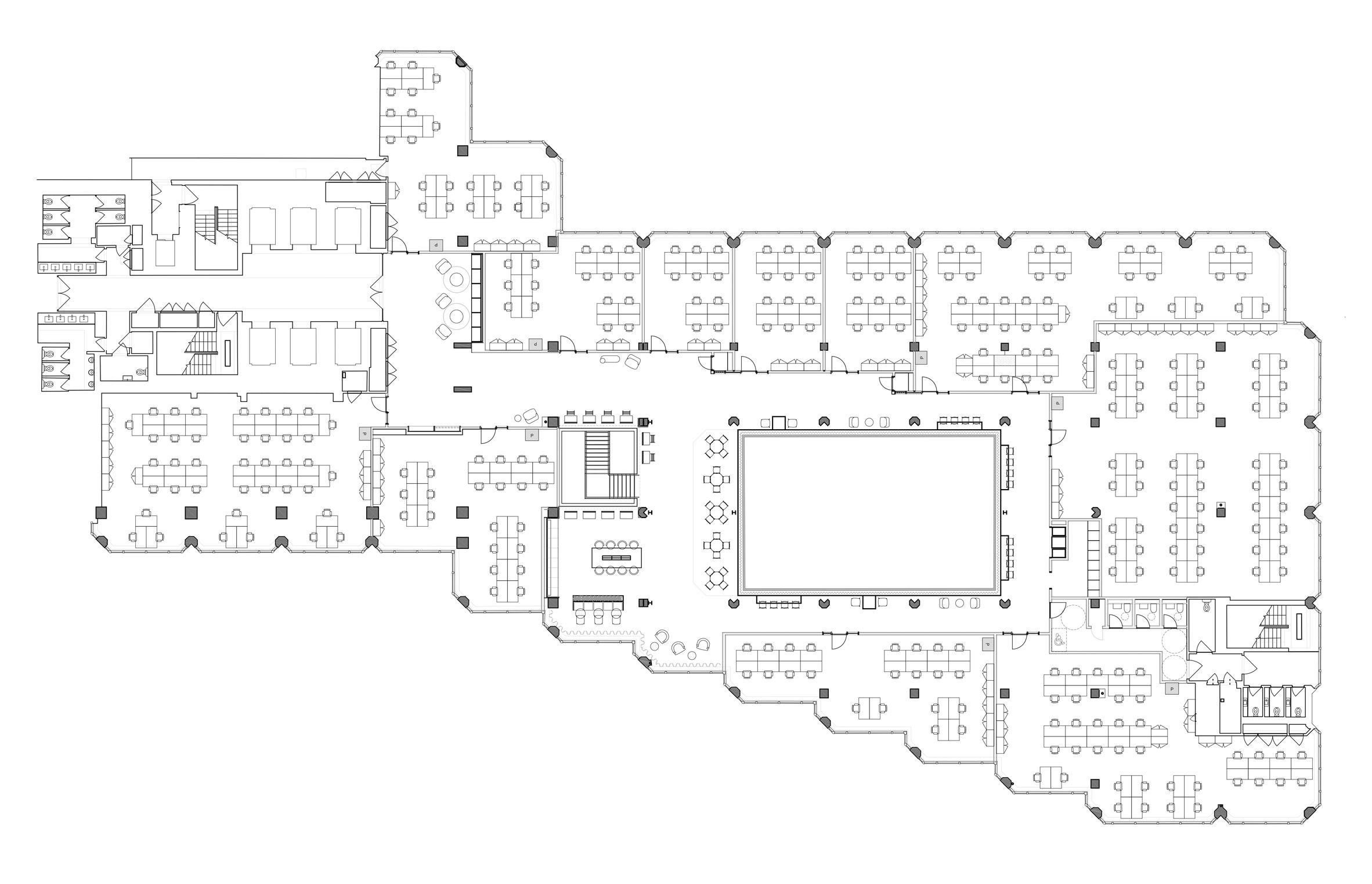
▼MYO 是 Landsec 集团旗下的一个全新的极具灵活性的办公空间。这个占据了 3716 平方米的办公空间,位于维多利亚街 123 号的一个四四方方的粗野主义建筑里,由 SODA 工作室设计完成。设计后的办公空间为使用者提供了一个弹性变通的使用格局,而不是像现在常见的办公室设计那样给使用者提供了一个硬性的布局安排。SODA 工作室在内部空间的设计上回应了建筑外立面标志性的模块化的建筑语言。





▼MYO 的设计思路是把楼主所有的空间和服务设施灵活地提供给租户。混凝土和玻璃外壳下的这一系列空间都可以重新组合,在空间和租赁计划上可以去适应十到一百人的企业。这是 Landsec 集团在灵活办公空间领域的初次涉足。设计过程中 SODA 工作室和 Landsec 集团密切沟通协作,内部的空间设计对外立面上令人印象深刻的建筑线条进行了回应,从而使建筑内外的设计语言保持一致。运用线条的同时,空间材质中加入了更为柔软的设计元素,让整个空间自然明亮,创造了一个适合集体办公的积极环境。


▼中央两层通高的中庭是空间内的视线焦点,既是使用者在办公楼出入的主要通道,也是公共活动的互动枢纽。中庭空间贯穿着 MYO 的设计主题,空间装饰上轻质有垂感的幕帘和在黑色灯具、楼梯、栏杆扶手、甚至包括选用的家具上都可以找到的定制管状框架元素,无一不延续着线条的设计语言。而现代化的线条和装饰元素又同沉稳的天然木材和抛光混凝土地板发生碰撞,在木制家具和灯光上又注入了一些跳跃亮眼的颜色和材质元素。

▼特别定制的楼梯,结构纤细轻盈,造型清晰简约,把上下两层的公共区域连接起来。轻巧又有雕塑感的楼梯与其周围裸露的坚实混凝土支柱产生了鲜明的新老建筑元素碰撞。混凝土支柱也是这幢历史意义丰富的建筑纪念和见证者。








登录查看全部