美式工业-Shuhei Goto Architects办公室
2023-03-14 14:00:24
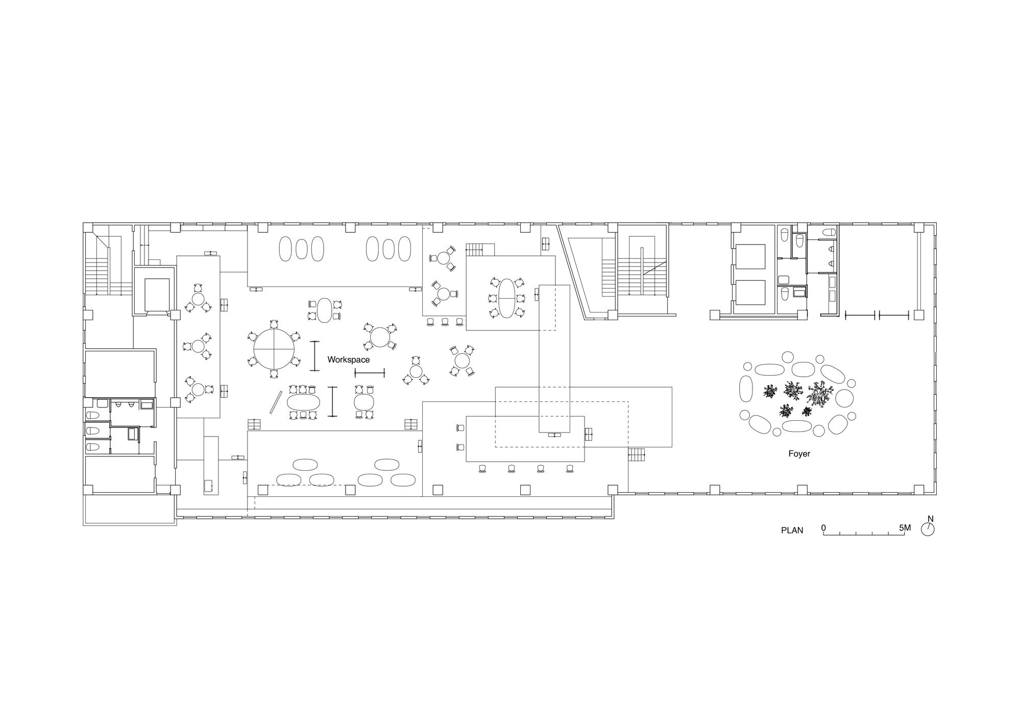
开放工业办公空间
由于独特的规模感,它们具有多种功能和外观,同时有助于灵活更新功能和重新定义办公空间本身,而不仅仅是服务于传统的办公功能。

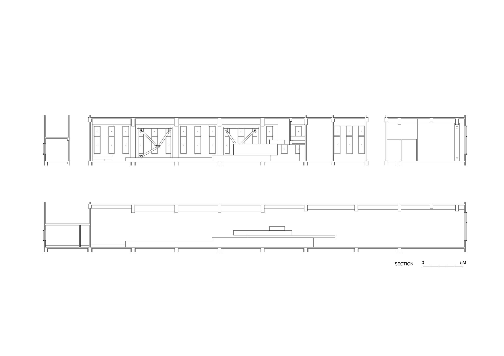
▼这间办公室被设计为创新新时代办公室的原型,其理念是当今的办公空间需要一些空间,以便员工自己进行灵活的更新和更新。我们决定将原来用于内部活动的现有演讲厅改造为能够容纳多种活动的空间,包括工作、会议、用餐、举办活动等。我们的想法是创造一个空间,让人们自由流通,满足各种目的,方法是利用现有空间的各个方向,沿着房间的边缘以交错的方式堆叠箱形台阶,同时在中心留出一个宽阔的开放空间。




▼通过充分利用各个方向的空间,在场人员之间产生了一种新的“距离感”,这与传统办公空间中的距离感完全不同:例如,并排工作的人不会因为彼此的视线不一致而感到不安;或者相反地,那些彼此分开坐着的人会因为他们的眼睛相遇而感到相互联系。由于这样的操作,各种各样的地方被创造出来,包括一个能唤起安全感的封闭的地方和一个能看到整个空间的开放的地方,人们可以选择一个最适合自己目的的地方。这些台阶可以视为不同的元素,如地板、长椅或桌子,具体取决于视点,它们具有多种功能。举行活动时,其中一个台阶充当舞台,而其他台阶则成为座位区。



▼台阶的多个功能以中空矩形的形状连续连接。此外,这座位于海边的建筑作为周边地区的紧急疏散避难所,那里几乎没有高楼,这些台阶可以方便地用作应急物资的储存。堆叠的台阶,对于家具来说太大,对于建筑来说太小,是介于家具和建筑之间的东西。





登录查看全部