国际学生宿舍SEM-欧洲最可持续的学生综合体
2021-11-29 11:10:04
建筑学校商业空间
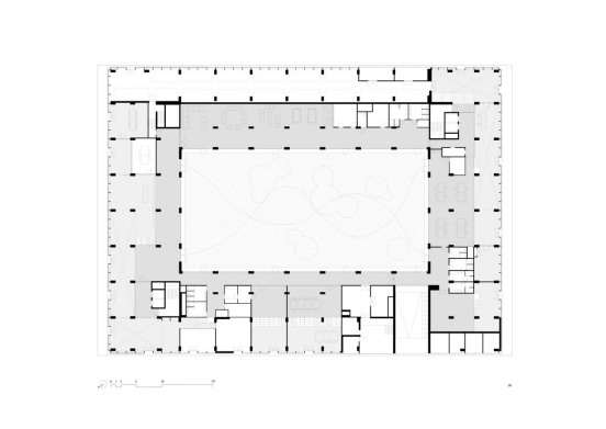
学生体验Minervahaven(SEM)是阿姆斯特丹不断变化的码头区的城市活化剂。SEM旨在满足国际学生对城市长期住宿日益增长的需求。该综合楼有许多专门针对国际学生的设施。除了近600间客房外,它还提供各种功能:咖啡吧、“洗衣吧”、健身房、休息室、书房、会议和商业空间,以及一个轻型街道自行车设施。
学生体验是阿姆斯特丹一个不断变化的码头地区的一个城市活化剂。SEM的设计是为了满足国际学生对长期住宿的日益增长的需求。该建筑群有一些专门针对国际学生的设施。除了近600间客房外,它还提供各种功能:咖啡吧、洗衣店、健身房、休息室、书房、会议和商业空间,以及轻型街道自行车设施。这些功能都位于底层。



以前在明尔瓦港的码头活动正逐渐让位给越来越多的国际媒体和时尚公司。SEM以其功能和新用户激活了社区。除了其社会学方法外,该建筑在可持续能源领域也具有创新性。目前,SEM是欧洲最可持续的学生综合体之一。可持续性的整体方法获得了BREEAM优秀证书。



太阳能是由光伏电池板产生的,向南、西、东三面的综合体的两侧应用,使屋顶免费供居民使用。Solarlab有自定义设计和生产的面板,安装有选择性的玻璃片,水平智能和弹性,以及一个非眩光表面,是自我清洁,以确保长寿命和高效率。Kromatix涂层只反映一定的光频率,结合高效率的侧面,有一种微妙而生动的色彩感觉。

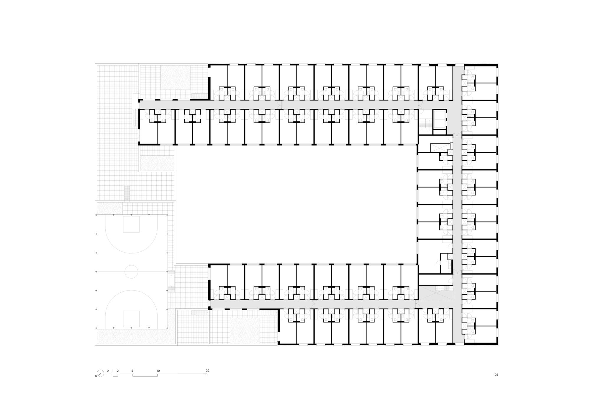
扫描电镜体积呈方形,从第四层到第九层,通过交错屋顶露台。本网站上的许多房间都可以看到Minervahaves附近的水。建筑的内外环高度各不相同,都是用不同的材料建造的。这种细微差别有助于进一步区分卷。

最后,不寻常的屋顶景观在SEM的出现和使用中起着很大的作用。屋顶人行道连接花园、体育设施、集体梯田和私人梯田。有了这个屋顶,这个建筑群给了城市额外的集体和社会空间。作为一个整体,SEM是一座多面建筑.它是一个坚固的城市街区,舒适的居住环境和能源机器,但最重要的是,它是一个集人,社会和城市的素质。

项目更多图片



























登录查看全部