Capleeuwin是大型Quai des Caps开发计划的一部分,该计划是Fayat Stationary和展台扩建的联合运营,其中包括广泛的开发项目。该行动完成了对巴萨弗洛特地区波尔多市的改造。它采用了四个地块(街区)的形式,每个地块都被命名为一个著名的海角,紧挨着2号船坞。作为城市北口及其码头的“信号”,Capleeuwin是第一个象征BassinsàFlot复兴的地标
CapLeeuwin是大型Quai des Caps开发计划的一部分,该计划由Fayat固步机和摊位推广联合运营,其中包括各种各样的发展。这项行动完成了波尔多市BassinsàFlot地区的城市改造。它的形式是四个地块(街区),每个都被命名为一个著名的海角,旁边是第2号船坞。作为一个“信号”,代表着这座城市及其码头的北面入口,莱尤温号(CapLeeuwin)是第一个象征着巴辛斯号(BassinsàFlot)重新诞生的标志性地标

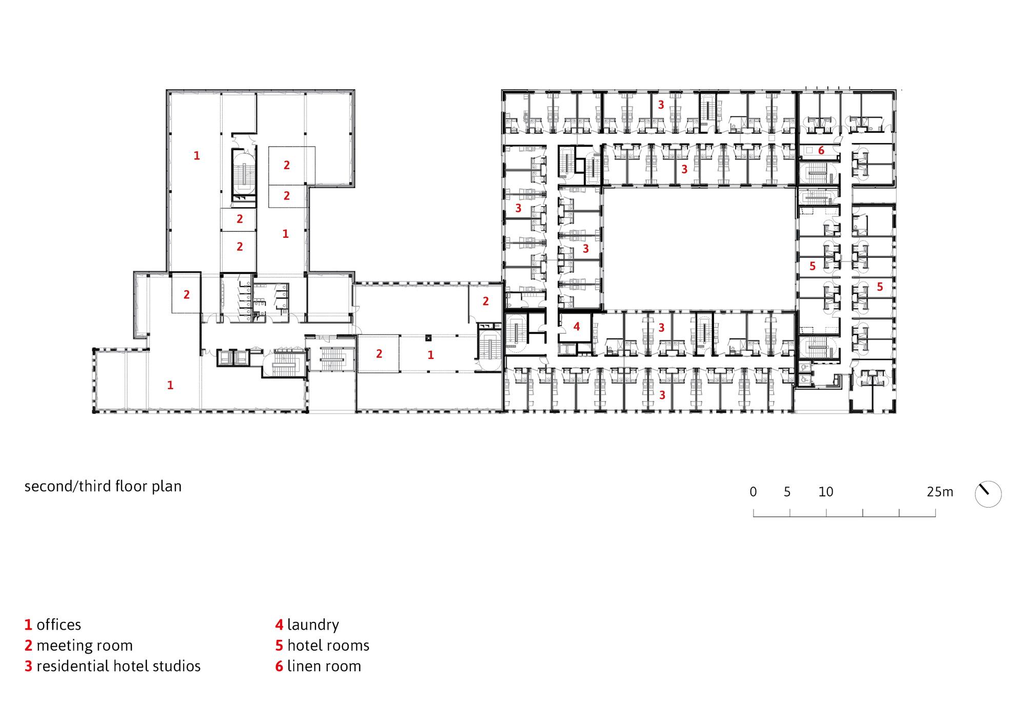
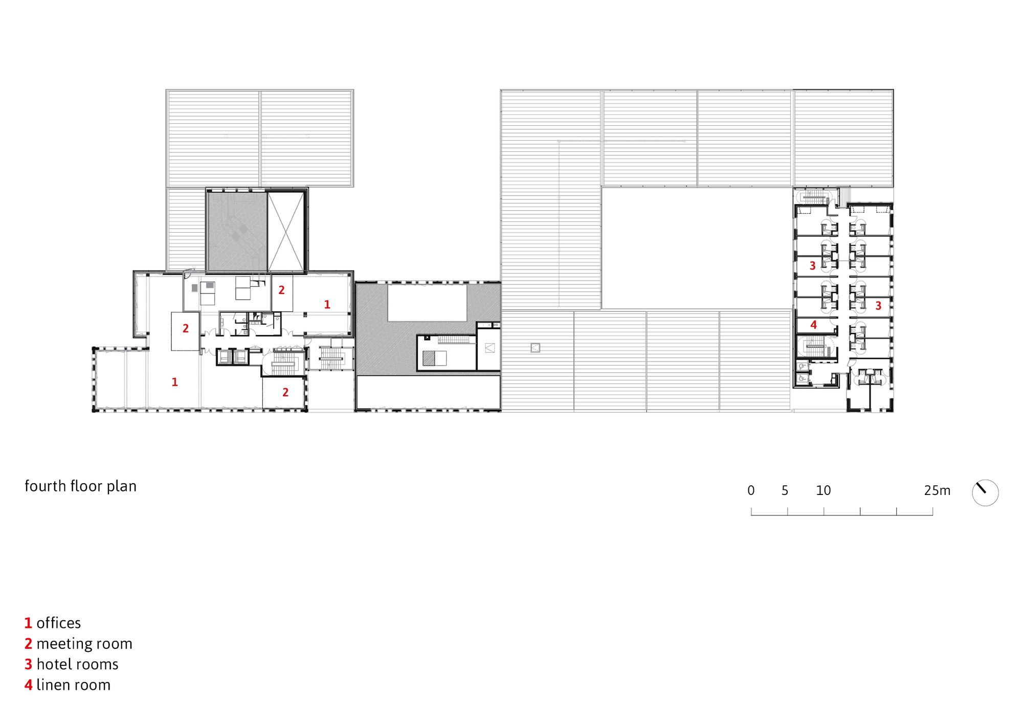
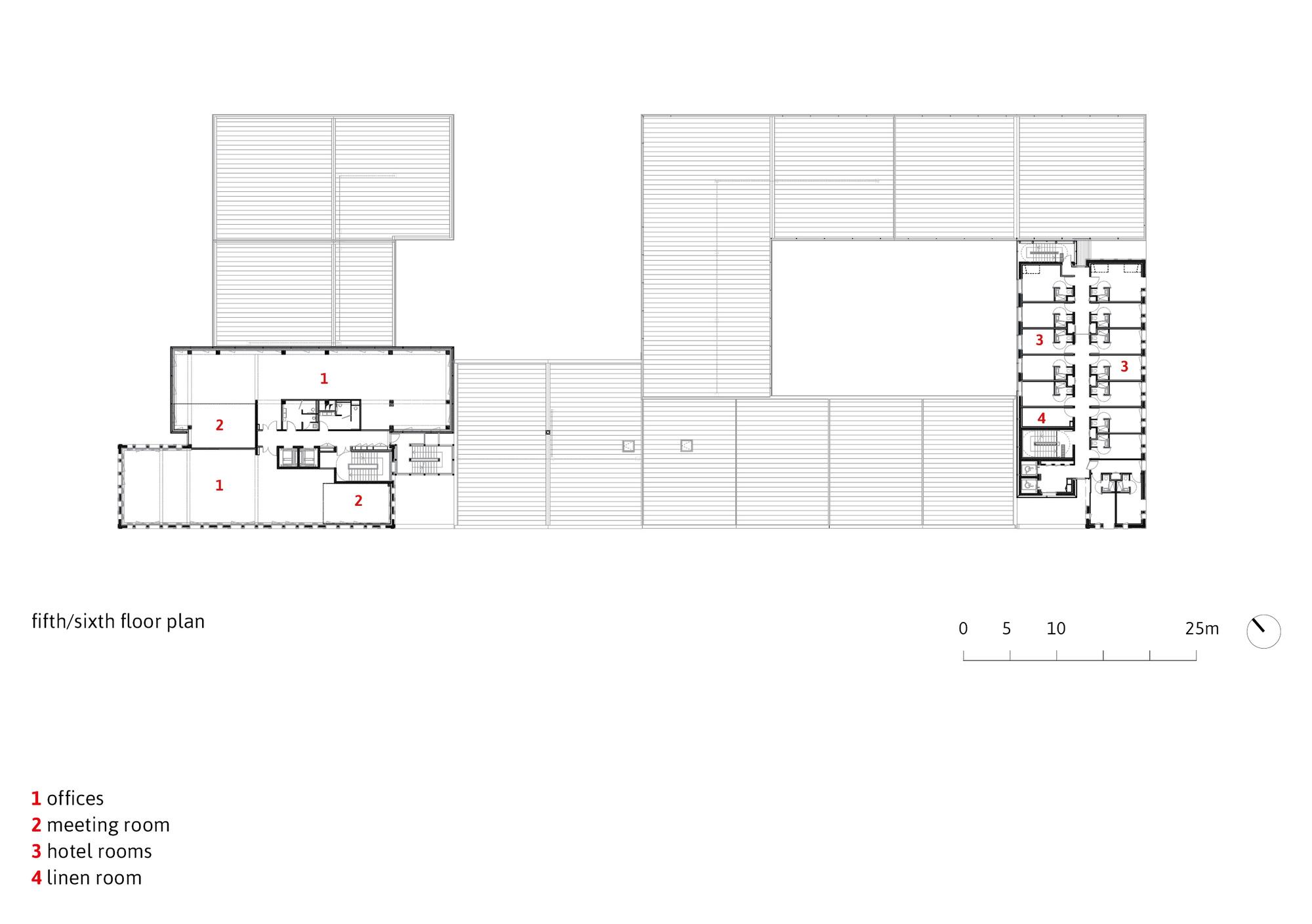
该大楼总面积为15,119平方米,合并了四个不同的方案实体:办公室(5,755平方米)、一家拥有124个房间的三星级酒店(3,061平方米)、一家有128间工作室的长期住宿旅馆(3,392平方米)和一层商店(2,911平方米)。它的形状和布局设计不仅是为了建筑的一致性,而且是为了确保不同节目的独立性得以保持,以便不同的用户避免相互妨碍。

凯雷温的设计赞扬了该遗址的工业和海洋历史,重新诠释了它的当代风格。这座建筑的体积很大,形成了一种微妙的形式和材料组合,这些形式和材料是指码头边的工业棚和路西安福尔街的码头。它被两个较高的部分点缀着,就像情节两侧的小塔,象征着信号,提供了以前看不见的码头和城市的景色。


建筑设计的原则也体现在用于立面的两种材料,即砖和金属。街道上的砖砌外墙突出了这栋建筑与城市的关系。手工铸造的陶瓷砖的不均匀性,以及它的棕色,给了建筑一种独特的感觉,它的外观和窗户的整体模式突出了它的活力。

在码头边,建筑物的高度逐渐降低;这里的外墙是涂有阳极的铝网,突出了体积,捕捉到了光线,产生了微妙的色彩。

该住宅酒店是围绕一个中央露台开发的,两座大型共用木料覆盖的露台也可供办公用户使用。第一层,俯瞰码头的一层,将空气带入中央区域,并打开码头的视野。第二层是塔的第七层,与Place Latule并排,为码头和城市提供了全新的全景。

Leeuwin是认证的Breeam非常好和良好的建筑标准银。该建筑与取暖和冷却网络相连,利用木材生物质锅炉和从废水中回收热量的系统供应整个街区。为了帮助恢复这座城市的生态功能,我们在酒店和办公室的屋顶露台上种植了各种不同的本地物种,并安装了野生动物托管设备

项目更多图片



















