社区的其他住宅包括 PPAA 的全黑住宅和 1970 年代的混凝土住宅,该住宅由 Viga Arquitectos 翻新,以在保留原始设计的主要特征的同时使室内更加明亮和现代化。
建筑工作室 HEMAA 在墨西哥城的 Jardines del Pedregal 社区完成了两栋住宅,它们在房产前面共享一个郁郁葱葱的花园。
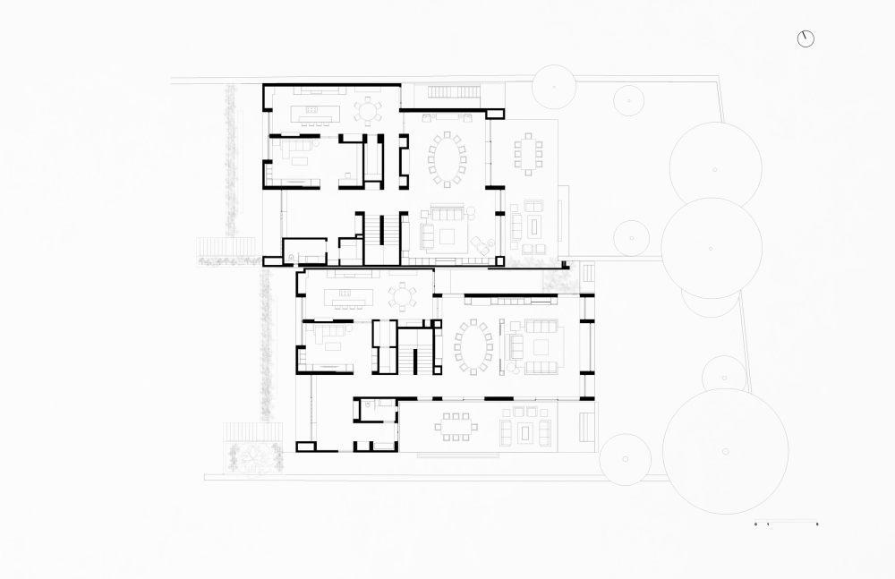
这对类似的房屋于今年早些时候竣工,各有四间卧室和五间浴室。 它们位于墨西哥城高档 Jardines del Pedregal 地区的一个陡峭地点,最初由 Luis Barragán 于 1940 年代设计。

该地区以其建筑群的岩石景观命名。 它坐落在熔岩原上,这是 Barragán 试图在他对该地区的原始设计中强调的特征。
HEMAA 解释说:“他有一个现代主义住宅开发的愿景,其中建筑将与自然景观和戏剧性的火山地层以及其他理想相协调,建立清晰的对话。”

从前门进入后,游客会发现自己置身于两栋房屋对面的青翠共享花园中。
由于场地明显的海拔变化,房屋的主要楼层是一段外部楼梯,通向每栋房屋前面的全宽露台。

HEMAA 说:“进入房子是由楼梯引导的,楼梯突出了主门的特征,外墙上被花箱和植物包围。”
“主要挑战之一是为两个大家庭调整一个庞大的项目,同时将建筑与自然地形融为一体,并与景观融为一体。”

HEMAA 在住宅的底层布置了公共区域,其中包括用餐厨房、正式餐厅和外部露台。
起居和用餐区均通向后院,后院被石墙一分为二,为每个家庭提供更私密的户外空间。
楼上是住宅的卧室,以及为家庭聚会提供更非正式场所的媒体室。 最后,每个家庭都有一个屋顶露台,建筑师们说这是“专门用于观赏建筑群”。
两栋住宅宽敞的内部空间均采用内敛的调色板,配有橡木地板、内置搁板和门。
外立面使用的石块是 Cantera Gris de los Remedios,来自 Hidalgo 的一个当地采石场,距离墨西哥城大约 100 公里。
对角线刻痕图案赋予材料一种不同于石头的水平和垂直接缝线的纹理。
HEMAA 说:“这种抛光而优雅的工匠作品赋予了立面独特的身份,通过使用当地采购的材料,再次提到了佩德雷加尔现代主义运动中最好的建筑。”
HEMAA 成立于 2011 年,由 Alejandra Tornel、José Miguel Fainsod 和 Santiago Hernández Matos 领导。 他们还根据原建筑师的图纸完成了现代主义墨西哥建筑师奥古斯托·H·阿尔瓦雷斯 (Augusto H Álvarez) 对房屋的翻修。
Jardines del Pedregal 社区的其他住宅包括 PPAA 的全黑住宅和 1970 年代的混凝土住宅,该住宅由 Viga Arquitectos 翻新,以在保留原始设计的主要特征的同时使室内更加明亮和现代化。














