注册 | 登录
今日更新:100
已为你搜索到以下结果 /没有搜到相关素材请加qq群704148082索取
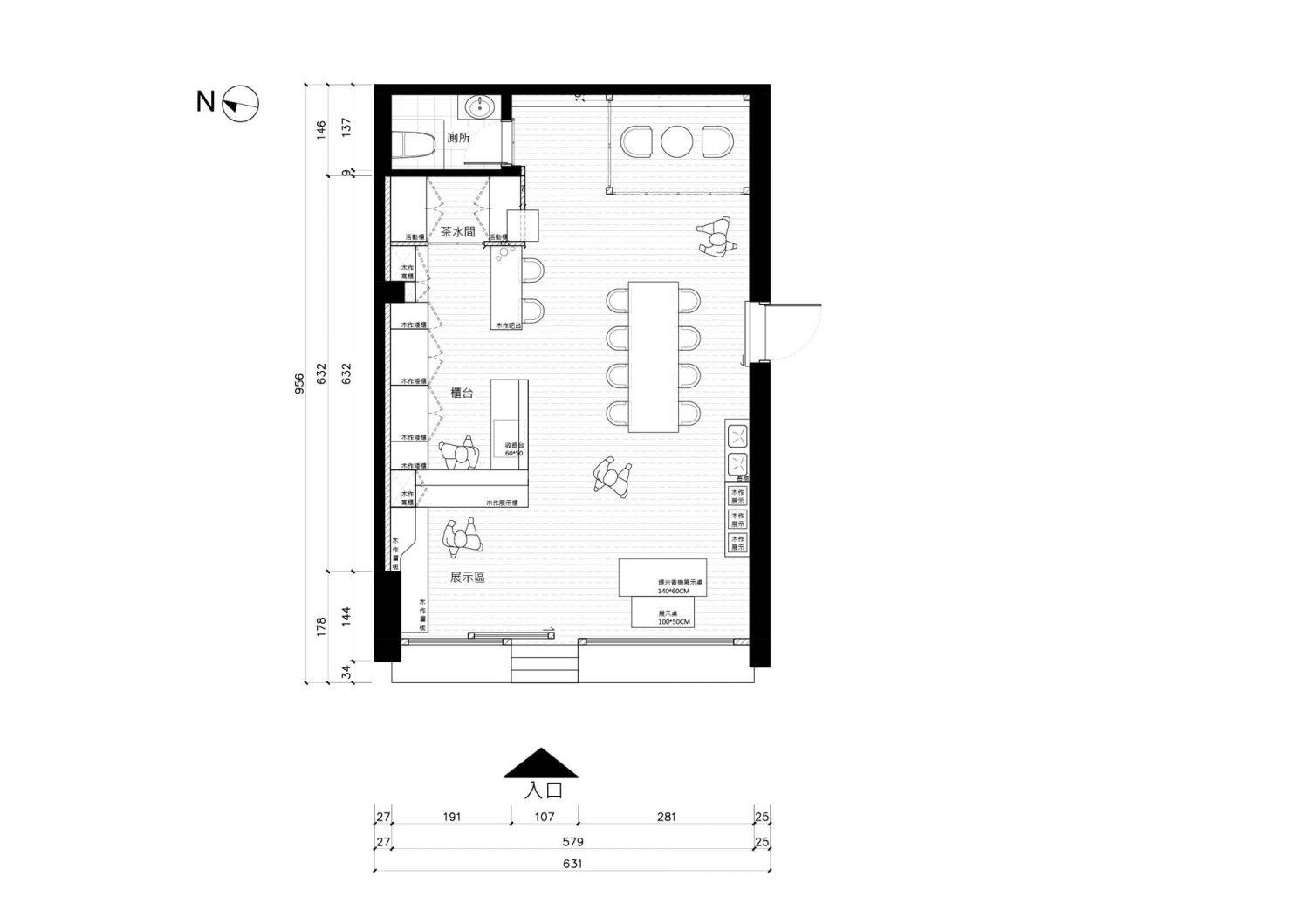
拾禾米香-餐厅
2024-03-28 17:57:03
室内餐厅商业
拾禾米香餐厅的设计理念在于打造一个温暖、自然且富有变化的空间,将购物、品尝美食与休闲体验融为一体。

1.jpg

通过运用不同材质和元素的对比与融合,创造出一种既简约又富有层次感的氛围。同时,注重光影效果的变化,营造出舒适自然的氛围,让顾客在享受美食的同时,也能感受到空间的独特魅力。

2.jpg3.jpg4.jpg6.jpg8.jpg9.jpg

设计内容主要包括大型餐桌与配套椅的设置,以及空间材质的选择与运用。木质材料带来温暖与圆润感,混凝土墙的自然形成与绿色氛围相呼应,白色空间则显得简单而坦率。

10.jpg11.jpg12.jpg13.jpg14.jpg

贵宾区采用日式榫接概念打造半独立箱体,为开放空间提供专用封闭空间。购物区域在去除砖块后形成,与整体空间风格相协调。同时,注重光影效果的设计,使空间在不同时间呈现出不同的质感和光影变化,为顾客带来非凡的感受。

15.jpg16.jpg17.jpg18.jpg19.jpg20.jpg21.jpg22.jpg23.jpg24.jpg25.jpg26.jpg27.jpg28.jpg29.jpg30.jpg31.jpg32.jpg33.jpg34.jpg

登录查看全部
拾禾米香-餐厅
素材ID号1367复制ID号
294
  • 上传时间: 2024-03-28 17:57:03
  • 文件大小: 9.13M
  • 素材标签: 室内餐厅商业
  • 高清原图下载
  • 收藏
  • 分享
  • 他上传的材料
    028-86628548
  • 关于我们 网站协议 关于我们 联系我们 加入我们 业务拓展
  • 常见问题 上传要求 下载问题 充值支付 提现收益 帮助中心
  • 免责声明 本网站内容由用户自由上传,如权利人发现存在误传其作品情形,请及时与本站客服联系
  • 友情链接
  • 关注我们

    了解更多