注册 | 登录
今日更新:100
已为你搜索到以下结果 /没有搜到相关素材请加qq群704148082索取
远方的馔盒-餐饮空间
2024-03-27 15:05:37
室内餐饮空间日式
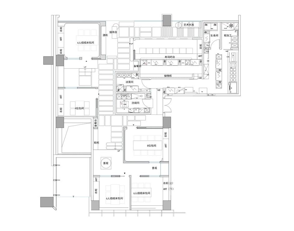
本设计以“远方的礼物”为核心理念,将日本工艺与现代科技相结合,创造出一个既具韵味又富有现代感的日料理空间。

1.jpg

设计内容包括六个形态各异的方盒子包间和一个半开放的板前料理区,它们错落有致地分布在一个“T”形的黑暗空间中。每个包间都采用了独特的材质和工艺,如玻璃夹画工艺、深色艺术大理石等,以展现传统艺术的光辉岁月。

2.jpg3.jpg4.jpg5.jpg6.jpg7.jpg

板前料理区则以半开放的形式展现其特殊性,通过浅色木线条和黑色木花格栅等设计元素,营造出一种轻清上浮、重浊下凝的空间氛围。

8.jpg9.jpg10.jpg11.jpg12.jpg13.jpg14.jpg15.jpg

设计还注重空间与环境的互动,通过观景窗、枯山水景观等设计手法,打破内外界限,让食客在享受美食的同时也能感受到自然的美好。

16.jpg17.jpg

登录查看全部
上一篇:LOAF-餐厅 下一篇:SOMESOME-餐饮空间
远方的馔盒-餐饮空间
素材ID号1335复制ID号
215
  • 上传时间: 2024-03-27 15:05:37
  • 文件大小: 4.93M
  • 素材标签: 室内餐饮空间日式
  • 高清原图下载
  • 收藏
  • 分享
  • 他上传的材料
    028-86628548
  • 关于我们 网站协议 关于我们 联系我们 加入我们 业务拓展
  • 常见问题 上传要求 下载问题 充值支付 提现收益 帮助中心
  • 免责声明 本网站内容由用户自由上传,如权利人发现存在误传其作品情形,请及时与本站客服联系
  • 友情链接
  • 关注我们

    了解更多