注册 | 登录
今日更新:100
已为你搜索到以下结果 /没有搜到相关素材请加qq群704148082索取
竹影-餐饮空间
2024-03-27 10:28:37
建筑餐饮空间室内
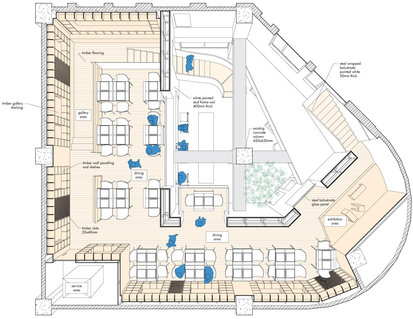
打破传统餐厅的边界,将艺术、自然与餐饮艺术融为一体,使人们在繁忙的城市生活中找到一片心灵的净土。

本项目位于北京新CBD附近的三层底商中,设计团队通过对原有空间的彻底改造,将原本小且黑暗的空间转变为一个充满功能性、互动性与探索性的艺术餐饮空间。设计过程中,我们拆除了大部分墙壁和地板,仅保留混凝土建筑结构和外立面,将三层商铺整合为一个连贯的整体。在结构框架上,我们巧妙地加入了旋转楼梯、竹林以及现场制作的日式家具,营造出一个既现代又充满日式韵味的空间。同时,大量镜框的加入使得空间在不同角度呈现出不同的“画”面,增强了空间的趣味性和探索性。

1.jpg2.jpg3.jpg4.jpg5.jpg6.jpg7.gif8.jpg9.jpg10.jpg11.jpg12.jpg13.jpg14.jpg15.jpg16.jpg17.jpg18.jpg19.jpg20.jpg21.jpg22.jpg23.jpg24.jpg24a.jpg25.jpg26.jpg27.jpg28.jpg29.jpg30.jpg

登录查看全部
竹影-餐饮空间
素材ID号1330复制ID号
167
  • 上传时间: 2024-03-27 10:28:37
  • 文件大小: 12.73M
  • 素材标签: 建筑餐饮空间室内
  • 高清原图下载
  • 收藏
  • 分享
  • 他上传的材料
    028-86628548
  • 关于我们 网站协议 关于我们 联系我们 加入我们 业务拓展
  • 常见问题 上传要求 下载问题 充值支付 提现收益 帮助中心
  • 免责声明 本网站内容由用户自由上传,如权利人发现存在误传其作品情形,请及时与本站客服联系
  • 友情链接
  • 关注我们

    了解更多