注册 | 登录
今日更新:100
已为你搜索到以下结果 /没有搜到相关素材请加qq群704148082索取
西湖畔·松子-餐饮空间
2024-03-26 17:17:47
室内餐饮空间日式
将日式与现代设计手法相结合,创造出既符合料亭特色又与西湖岸边环境相和谐的独特空间。

1.jpg

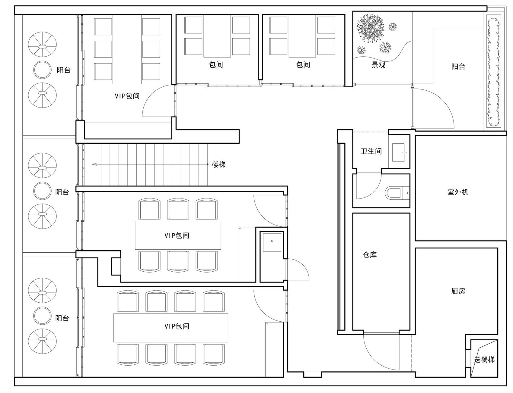
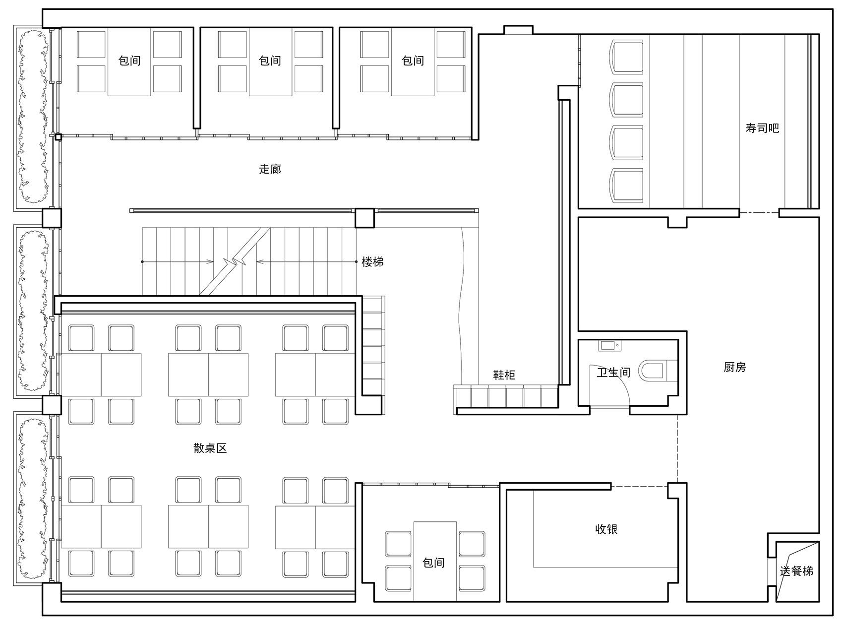
设计内容主要包括二层和三层的空间布局与装饰。二层由包间、寿司吧和大厅构成,采用日本传统太鼓张作为隔断,确保私密性的同时保持通透性。大厅墙面运用木格栅元素,并设置植物与雪见障子隔断,既阻挡外界杂乱景色又确保自然光的引入。三层为VIP房间,利用高天花设计贯通上下的装饰柜与间接照明,营造出安静、私密的氛围。

2.jpg3.jpg4.jpg5.jpeg6.jpeg7.jpg8.jpg9.jpg10.jpg11.jpg12.jpg13.jpg14.jpg15.jpg16.jpg17.jpg18.jpg19.jpg20.jpeg21.jpeg22.jpeg23.jpeg24.jpeg

登录查看全部
上一篇:AJA餐厅 下一篇:粤馔艺廊-餐饮空间
西湖畔·松子-餐饮空间
素材ID号1326复制ID号
169
  • 上传时间: 2024-03-26 17:17:47
  • 文件大小: 8.07M
  • 素材标签: 室内餐饮空间日式
  • 高清原图下载
  • 收藏
  • 分享
  • 他上传的材料
    028-86628548
  • 关于我们 网站协议 关于我们 联系我们 加入我们 业务拓展
  • 常见问题 上传要求 下载问题 充值支付 提现收益 帮助中心
  • 免责声明 本网站内容由用户自由上传,如权利人发现存在误传其作品情形,请及时与本站客服联系
  • 友情链接
  • 关注我们

    了解更多