0321 studio - NOUS花艺餐厅
2024-03-26 15:44:36
Architecture dining space interior
Nous 年初在东莞东城区开设了它第一家带有先锋性的实验型花艺餐厅,提供针对食材自身美学的探索和花艺搭配的混合服务。位于深圳的创意机构0321studio与Nous合作,为这间沿街店铺进行组织与设计。客户的要求重点在于如何解决花艺与餐饮的关系,视觉,功能,以及情绪。
餐厅外观

我们强调空间与人、空间与空间、情绪与环境之间的深层次关联,旨在通过设计创造出一种能够触动人心、引发共鸣的空间体验。本项目的设计内容主要围绕空间材质的运用与情感的营造。选择了水磨石作为主要材料,并通过调整骨料与辅料的比例,以及放大白色骨料的尺寸,创造出一种独特的材质机理。这种特殊的水磨石材质大面积运用于空间之中,不仅营造出极致的视觉体验,更能够影响顾客的情绪,为他们带来一种独特的用餐感受。通过这种设计,我们试图打破常规的空间界限,让顾客在用餐的同时,也能够感受到空间所带来的情感共鸣和心灵触动。通过材质与空间的设计,引发人与环境之间的情感共鸣。它简洁而富有内涵,能够准确传达出项目的主要特点和设计理念。
夜景

我们提出“隐而不蔽,透而不露”的设计理念,将餐厅的视觉信息完全隐蔽于花艺功能之后,使花艺区域不再仅仅是餐厅的附属,而是成为一道独特的风景,既干扰了外部对餐厅的直接观察,也实现了与室内和公共街道的和谐交融。一个透明的方体盒子被放置在餐厅的门口,它既是街道的背景,也是餐厅向外看的背景。这个盒子通体透亮,使得光线可以自由地穿透,为空间增添了神秘感和层次感。顾客前往餐厅时,需穿过这个透明的盒子,这一过程不仅增加了用餐体验的仪式感,也让顾客在穿越的过程中逐渐感知到餐厅的存在。此外,花艺区域被巧妙地融入到设计中,它不再是餐厅的附属品,而是成为整个设计的重要组成部分。花艺的布置与透明的盒子相互呼应,既起到了装饰的作用,也实现了对餐厅视觉信息的隐蔽。这种设计使得餐厅在保持私密性的同时,又不失与街道的和谐联系。
沿街有关餐厅的视觉信息完全隐蔽,退守在花艺功能后

透明的方体既作为街道的背景,也作为餐厅向外看的背景






我们力求通过独特的水磨石现浇通长座位设计,结合两公分厚毛毡和简易金属构件,打造出一个既舒适又充满个性的用餐环境,并增强顾客的用餐体验,让他们在享受美食的同时,也能感受到空间元素的差异化所带来的新鲜感与想象力。水磨石座位的设计既体现了现代感,又带有一种质朴的美感,为餐厅增添了独特的视觉焦点。毛毡的加入则提升了座位的舒适度,同时也为整个空间增添了一抹温暖的色彩。简易金属构件则起到了连接和支撑的作用,使整个餐位布局显得利落而富有现代感。通过与其他同类餐厅的对比,我们的设计能够脱颖而出,给顾客带来一种全新的用餐感受。同时,这种差异化的设计也能够激发在这个环境里每个人的想象力,让他们在用餐的过程中产生更多的联想和思考。
彩色透明玻璃大面积出现,作为店与外界的界限



水磨石现浇通长座位,与两公分厚毛毡和简易的金属构件组合成利落的餐位布局


毛毡座椅细部

富有现代感的金属元素点缀在空间当中

粉色楼梯做垂直交通外也作为空间的装置元素,最后我们想说一下关于密集恐惧症的满壁碎片,相比它的装饰性,我们更在乎他情绪化的密集,三维空间里的二维故障美学。
粉色的垂直交通空间





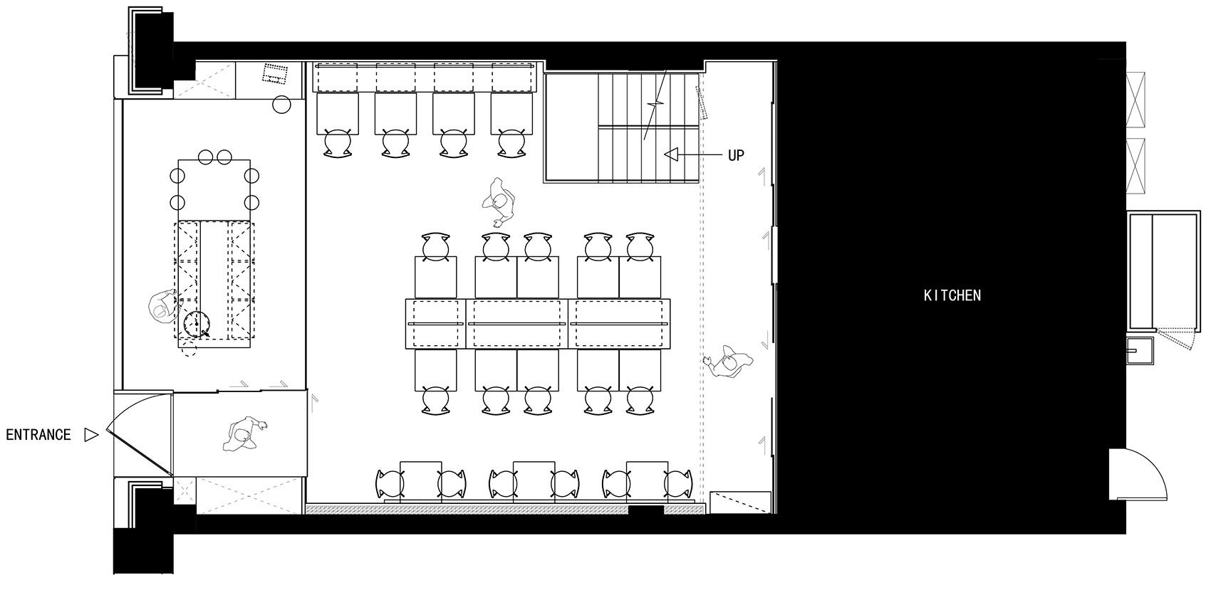
一层平面图

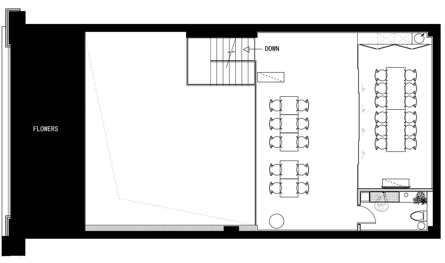
二层平面图

立面图及剖面图

登录查看全部