注册 | 登录
今日更新:100
已为你搜索到以下结果 /没有搜到相关素材请加qq群704148082索取
CASA TALIA空中艺术餐境-餐饮空间
2024-03-26 14:49:27
建筑餐饮空间室内
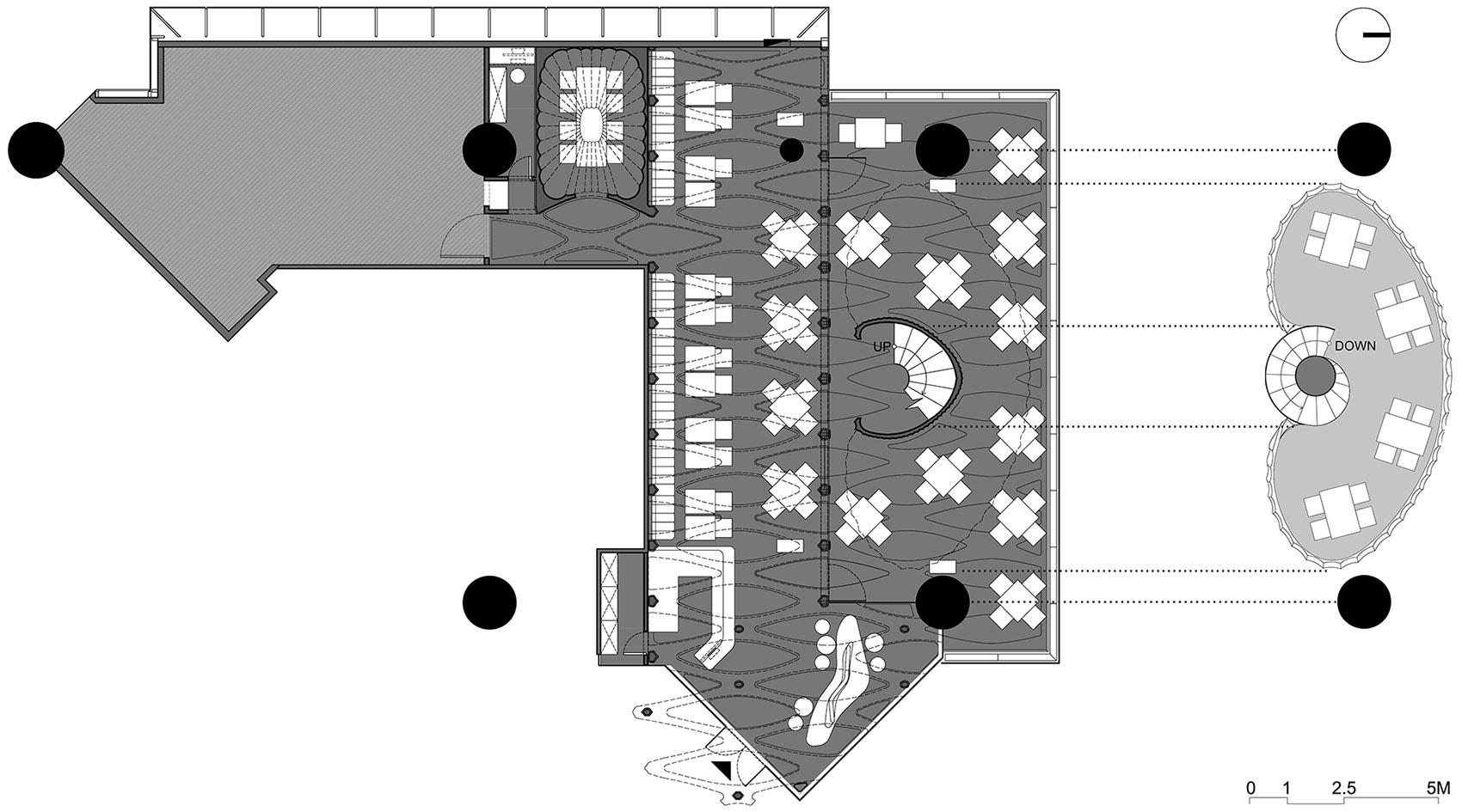
将餐厅与周围环境相融合,打造出一个充满艺术气息与戏剧化氛围的空间。

通过对地中海自然崇拜与超现实空间语言的结合,将品牌理念与空间形态完美统一。同时,注重空间的多维感官体验,将艺术与商业完美融合,打破现实与虚拟的边界,创造出可持续的IP价值。
CASA TALIA餐厅坐落在侨福芳草地中心塔楼的凹口处,由公共露台与室内空间两部分组成。设计师将露台打造成一朵由空中雨露滋养的“生命之花”,成为整个空间的视觉焦点。室内空间则如同置身于神圣教堂的秘境中,混凝土骨骼结构交织围合,形成新的空间体系。餐厅内部设有舒适的卡座沙发与优美的旋转楼梯,营造出丰富的层次感。VIP空间则采用围合设计,提供相对私密的环境,并配有特别创作的“星云”灯,增添空间的灵动感。露台上的生命之花装置向外延伸,形成双层露台,为客人带来不一样的空间体验。


1.jpg2.jpg3.jpg4.jpg5.jpg5a.jpg6.jpg7.jpg8.jpg9.jpg10.jpg11.jpg12.jpg13.jpg14.jpg14a.jpg15.jpg16.jpg17.jpg18.jpg19.jpg20.jpg21.jpg22.jpg

登录查看全部
CASA TALIA空中艺术餐境-餐饮空间
素材ID号1317复制ID号
221
  • 上传时间: 2024-03-26 14:49:27
  • 文件大小: 7.97M
  • 素材标签: 建筑餐饮空间室内
  • 高清原图下载
  • 收藏
  • 分享
  • 他上传的材料
    028-86628548
  • 关于我们 网站协议 关于我们 联系我们 加入我们 业务拓展
  • 常见问题 上传要求 下载问题 充值支付 提现收益 帮助中心
  • 免责声明 本网站内容由用户自由上传,如权利人发现存在误传其作品情形,请及时与本站客服联系
  • 友情链接
  • 关注我们

    了解更多